项目名称:华润悦府私宅
项目时间:2019年7月-2020年4月
项目面积:164㎡
项目地址:深圳市南山区海德二道与可园南路交叉口东100米
艺术总监:王新时
软装介入:王新时、张雅娟、邓雄宇、温蕴文、赵帅、许晓婷
文案摄影:朱宏宇 邓泳菁 丁朝盼
在我们进行前期洽谈时,房主说希望这套房子能成为她生命中某个阶段的一个给自己的特殊的礼物。因此此次项目——华润悦府私宅的改造。就是一次在这缺陷中,再升华,绽放的过程。
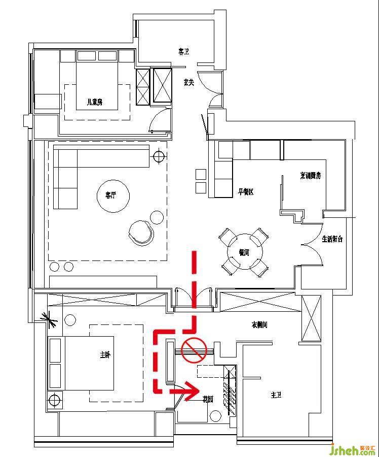
我们先对原本的空间进行了诊断:
1.整体空间生活弹性收纳不足。
2.客厅较小,没有达到有限空间的最大利用化
3.卧室缺少衣橱,妆台等功能
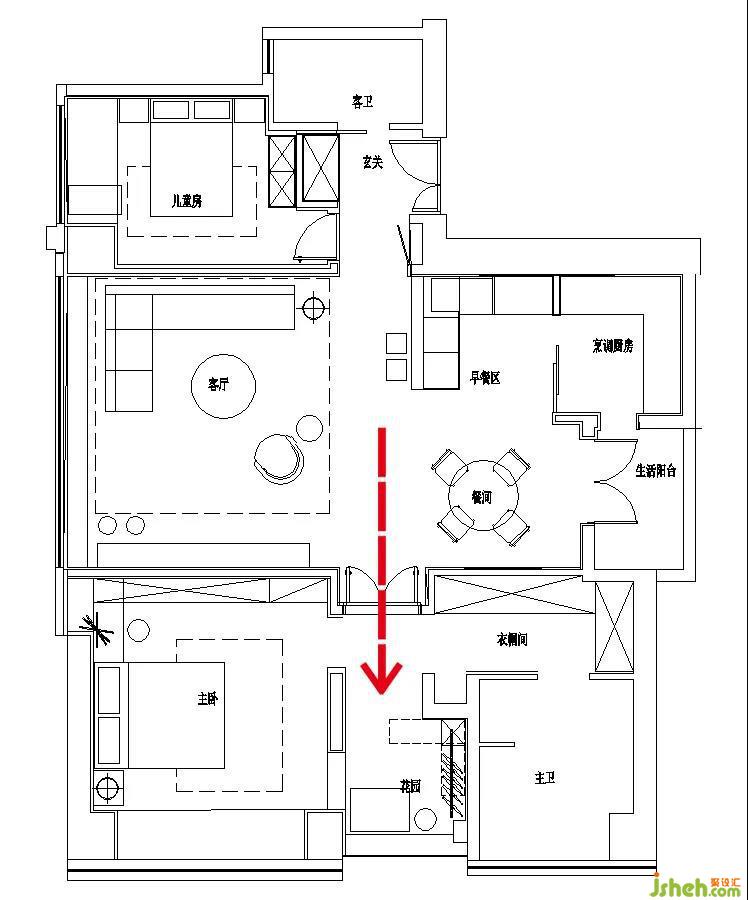
4. 主卧内私密性较低,房主安全感。随后依据以上问题进行再规划设计
调整前
调整后
在入门处,从电梯厅走出,可发现鞋架与空间浑然一体,豪宅设计师特意地将鞋架抬高,便于房主进出门脱换。人为地将鞋柜木饰面与墙面统一,简雅而不失格调。
入门,典雅与高贵的气息扑面而来,温暖的用色,彰显着温文尔雅。
于功能需求上构建精神需求,将艺术注入场所赋予灵魂,满室以清浅木质搭佐同色软件,为阅读时刻铺垫柔和氛围。




餐厅作为家庭情感交流的重要场地,减去了繁复的装饰,天然木材和白色大理石圆台桌营造出融洽舒适的生活意向。在就餐的同时也构建起了人们的各种想象,提升了生活情调。




开放式的客厅设计,彰显出空间氛围大气而雅致,与餐厅相连,动线设计自然随和,不失美感又充满生活雅趣。
蛋椅的设计,成为整个空间的点睛之笔。豪宅设计师外观看起来像是怀抱一颗隐形的蛋,落座入其中便可以感受到被温暖拥抱的感觉,布料甄选采用意大利进口的布料,创新大胆,设计由心。闲暇之余,给心一方休憩的空间。