
一巨波澜
坐落在露台,享受扑面而来的海风与洒在肩上的阳光,卸下城市生活的忙碌与疲惫,远眺碧波粼粼的大海同时欣赏和聆听海浪的声音,感受大自然的力量。



我把它叫做“小投入,大梦想”,因为很多人都希望自己家里有院子,但是在中国,特别在广东或者深圳,或者是这样的一个地方,自己家有院子的并不多,我们海边小院给到这样一群人,有一个实现梦想的机会。
艺术来源于生活,艺术一定是来源于生活,但是如果生活仅仅只有这种烟火气和柴米油盐酱醋茶的话,你会觉得生活很无趣。生活需要一些仪式感,需要一些艺术的提炼,需要一些艺术的关照。别墅样板间设计艺术不是阳春白雪,也不是所谓的曲高和寡,它需要从生活中来,同时又要回到生活中去。所以需要对每一天、每一处、每一个人、每一个物件,都要有一个像孩子般的好奇心和探索之心,不断的去产生好奇的兴趣。
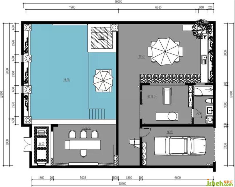
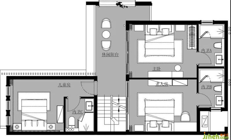
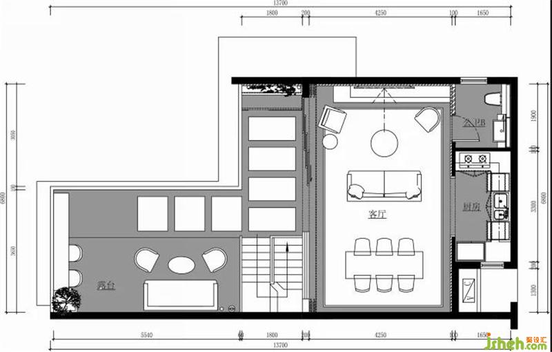
项目平面图
△ 一楼平面图
△二楼平面图
△ 三楼平面图
更多别墅样板间设计请关注聚设汇装修平台: