项目名称:勤诚达光明正大城样板间
项目时间:2019年8月-2019年9月
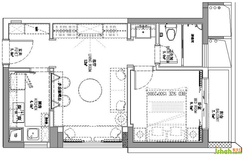
项目面积:37
项目地址:深圳市光明新区光侨路与松白路交汇处
艺术总监:王新时
设计介入:Stone Design 团队
文案 摄影:Stone Design 企划部
大城六时辰之日入【今晚吃鸡】
科技的日新月异的发展人们填充闲暇时间的模式也越来越丰富
手游作为一种快餐式游戏也逐渐融入我们的生活当中。样板房设计


以当今热游刺激战场为主题的空间
也就迎合了市场的需求三维游戏转向了实景的三维体验。样板房设计
枪支弹药一应俱全在这你你都能找到样板房设计

室内增加投影布直观游戏直播配置的吃鸡装配应用于现场吃鸡竞赛增加了互动体验样板房设计


整体格调简洁大气
游戏主题及体验的融入
也为整个空间注入趣味性样板房设计
