欢迎光临聚设汇,装修找设计就上聚设汇!
   咨询电话:15602987227
登录    注册
聚设汇
首页 > 商业 > 遇见另一个自己

遇见另一个自己

摒弃繁复,归于生活的本真,一种精神上的完全放松的状态也离不开对美好环境的浸泡。

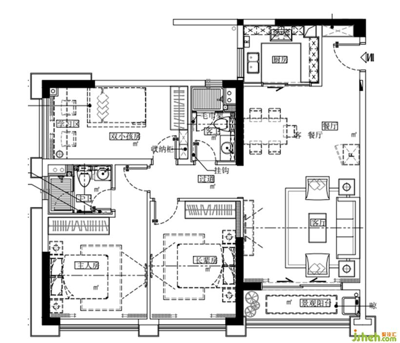
▲平面图

▲全感官创始人王新时

石头兄弟联创设计 创始人

设计收费:600~800 元/平             

擅长类型: 售楼处、样板房、高端住处

在线咨询

扫描二维码关注我们的微信

深圳市聚设汇文化传媒有限公司
主编热线:15602987227
总部:深圳市罗湖区梨园路128号宝能汽车大楼416单元
佛山、东莞、成都、重庆、福州、厦门、南昌、武汉、
杭州、苏州、温州、郑州、长春、沈阳、贵阳、柳州、
哈尔滨、九江等城市设立办事处
© 2017-2021 Jsheh.com 版权所有 粤ICP备17079093号
展开
回到顶部