品牌升级不只是空间美感的提升,更重要的是全维度效率的提升。动线设计在餐饮空间中的重要性不可忽视,它涉及到餐厅内各个功能区域的布局,直接影响餐厅一系列运营流程及顾客就餐时的心情,因此,除了高颜值的视觉空间外,专业和高效的服务动线更能增强顾客对品牌的信任与好感。





餐饮品牌空间化是一个复杂且充满挑战的任务,通过空间设计将品牌的核心价值融入其中,使消费者在空间中能够直观地感受到品牌的独特魅力,并与品牌建立情感连接,从而助力品牌完成迭代升级,实现商业价值的最大化。
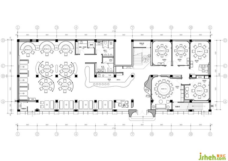
△一层平面图
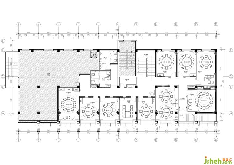
△二层平面图
更多餐厅设计请关注聚设汇装修平台: