欢迎光临聚设汇,装修找设计就上聚设汇!
   咨询电话:15602987227
登录    注册
聚设汇
首页 > 商业 > 鼎合设计丨南泥湾餐厅设计

鼎合设计丨南泥湾餐厅设计

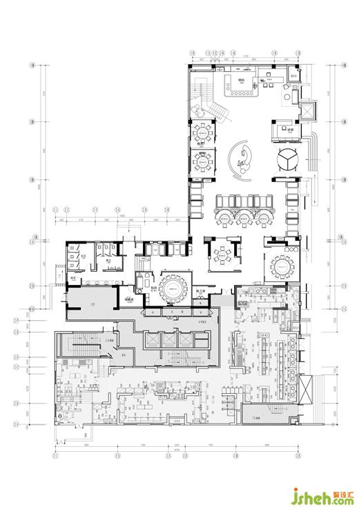
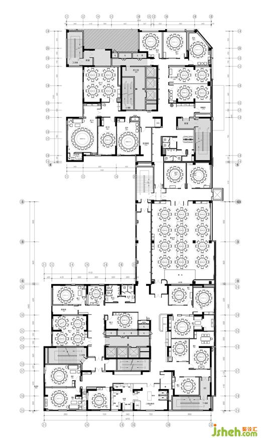
餐厅设计为了满足不同群体需求,设计师在二楼规划出足够数量的包间及宴会厅。

这个包间的灵感来自于“南泥湾,陕北好江南”的经典歌词,设置错落有致的景观,视觉上充满生机,光影流转,带人回到梦中故乡。

餐厅设计在峰回路转的空间里,壁布上的山丹丹花将每个功能各异的包间连贯成一个整体,形成属于西北的文化记忆。

餐厅设计并不仅仅只是“装饰”的表面改变,而是通过前瞻性的思考,从内而外的输出品牌更深层的内涵,本质上是要求「设计」有保障项目商业价值在未来持续发展的能力,而非追逐流行。

更多餐厅设计请关注聚设汇装修平台:

河南鼎合建筑装饰设计工程有限公司 总经理

设计收费:1000 元/平             

擅长类型: 酒店,餐饮,地产,办公室

在线咨询

扫描二维码关注我们的微信

深圳市聚设汇文化传媒有限公司
主编热线:15602987227
总部:深圳市罗湖区梨园路128号宝能汽车大楼416单元
佛山、东莞、成都、重庆、福州、厦门、南昌、武汉、
杭州、苏州、温州、郑州、长春、沈阳、贵阳、柳州、
哈尔滨、九江等城市设立办事处
© 2017-2021 Jsheh.com 版权所有 粤ICP备17079093号
展开
回到顶部