欢迎光临聚设汇,装修找设计就上聚设汇!
   咨询电话:15602987227
登录    注册
聚设汇
首页 > 商业 > 黄墙里的小酒馆设计:焦溪是家小院

黄墙里的小酒馆设计:焦溪是家小院

▼从窗洞向外看

▼从后门回看小院

▼雪中的小院

©远见文旅

▼轴测图

▼剖面图

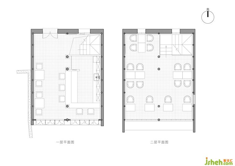
▼酒馆平面

更多小酒馆设计请关注聚设汇装修平台:

平介设计

设计收费:500 元/平             

擅长类型: 家装、豪宅、餐厅、店铺

在线咨询

扫描二维码关注我们的微信

深圳市聚设汇文化传媒有限公司
主编热线:15602987227
总部:深圳市罗湖区梨园路128号宝能汽车大楼416单元
佛山、东莞、成都、重庆、福州、厦门、南昌、武汉、
杭州、苏州、温州、郑州、长春、沈阳、贵阳、柳州、
哈尔滨、九江等城市设立办事处
© 2017-2021 Jsheh.com 版权所有 粤ICP备17079093号
展开
回到顶部