欢迎光临聚设汇,装修找设计就上聚设汇!
   咨询电话:15602987227
登录    注册
聚设汇
首页 > 商业 > 元素体育海乐世界3.0设计

元素体育海乐世界3.0设计

▼室内采用黄色,配合彩色橡木地板、软包等,创造一个有层次的空间Basketball court, using the neutral color tones, oak floor system to create an interior space with simple and elegant spatial layers © Yan Dong

彩色轴线Color Palette

彩色设计致力于让人一进入元素体育,就能感受到扑面而来的时尚活力的气息,体育世界设计在入口前台营造时,选用银色金属漆面和灯光的强烈视觉搭配突出力量感与线条感。背景墙和前台融入了细腻的篮球形态,在一目了然的篮球打造出整体感,而吊顶、周边墙面以新型材料聚碳酸酯板和灯带配以明黄色突出元素体育logo,通过有纵深感、有层次的图底关系,充分展现出一个体育文化氛围浓厚的公共空间。

The colorful design is designed to make people feel the fashionable and energetic atmosphere as soon as they enter Element Sports. When the design is created at the entrance front desk, a strong visual combination of silver metallic paint and lighting is used to highlight the sense of strength and lines. The background wall and front desk are integrated into the delicate basketball shape, creating a sense of integrity in the clearly visible basketball. The ceiling and surrounding walls are made of new materials polycarbonate boards and light strips with bright yellow prominent elements sports logo, creating a sense of depth and The hierarchical relationship between the picture and the ground fully demonstrates a public space with a strong sports culture atmosphere.

球形元素的亚克力灯与包在前台上的线性灯柱,结合黄色也起到了加强空间线性的作用,旨在在视觉与材质上将不同运动空间衔接在一起。

The acrylic light strips with linear elements and the color surrounding the columns and steel frames also play a role in defining the space, aiming to connect the different movement Spaces visually and materially.

▼灯的秩序感空间Linear visual order© Yan Dong

按秩序排列的灯条形成了一种充满音乐感的节奏,结合球形灯如飘浮的音符,延伸至两侧,激发人们的活力,给人留下难忘的印象。

The different lengths of the lights form a musical rhythm, such as floating notes, extending to the sides, stimulating people's energy, enlarging their range of action, making the game more intense, leaving a memorable impression.

色彩提炼Color Palette

整体视觉色彩中,黄蓝色与粉蓝色搭配带来强烈视觉冲击力,搭配中和了粉色的稚嫩感,凸显空间的活力,平衡了黄色带来的靓丽感,创造出极致彩色的欢乐空间观感。

Among the overall visual colors, the combination of yellow, blue and pink blue brings a strong visual impact. The combination neutralizes the childishness of pink, highlights the vitality of the space, balances the beauty brought by yellow, and creates an ultimate colorful and happy space. Perception.

▼色彩的视觉碰撞, Visual contrary between pink and blue   © YanDong

待在色彩丰富的环境中可以让儿童更为敏感,并且有利于培养每个孩子的个性。处处融入人性化地关怀与个性化的需求设计,相信这里也将成为人们最爱去的运动场馆之一。体育世界设计被色彩包围,生活在色彩中,接触不同的色彩,元素体育希望以这样的方式丰富儿童的情感,让他们健康成长每一天。

Being in a colorful environment can make children more sensitive and help develop each child's personality. Integrating humanized care and personalized design into every aspect, I believe this will become one of people’s favorite sports venues. Surrounded by colors, living in colors, and exposed to different colors, Element Sports hopes to enrich children's emotions in this way and allow them to grow up healthily every day.

▼球场视角,Theplay view  © Yan Dong

材料的透明性Sustainable material

入口所用灯具与门头材料均为定制亚克力,以聚碳酸酯板包覆门头,亚克力球形灯点缀其中,形成秩序感的空间。在有限的造价下,结合黄色墙面,来围合一个基础单元空间。丰富的模数在不同的位置有特殊的搭接处理,目的是让单调的围护结构变的丰富而有亲和力。把材料的质感使用到极致,围合一个虚实对比清晰,通透又坚固耐用的空间。

The lamps and door head materials used at the entrance are all custom-made acrylic. The door head is covered with polycarbonate plates and embellished with acrylic spherical lights to create a sense of order in the space. With a limited cost, it is combined with yellow walls to enclose a basic unit space. The rich modules have special overlapping processing at different locations, aiming to make the monotonous building envelope rich and friendly. The texture of materials is used to the extreme to enclose a space with clear contrast between reality and reality, which is transparent, sturdy and durable.

▼入口前台,Entrance hall © Yan Dong

立面的设计The elevation

升级后的元素体育3.0系列,立面设计强调被色彩包裹的空间体验与视觉体验,相互两个方面形成互补,用灯光加强立面的黄色与粉色渐变,增强视觉丰富性,让空间体量变得通透完整。

The upgraded Element Sports 3.0 series, the facade design emphasizes the spatial experience and visual experience wrapped in color, which complement each other. Lighting is used to enhance the yellow and pink gradients of the facade, enhance visual richness, and make the space volume become Transparent and complete.

▼粉色与蓝色的视觉碰撞, Visual contrary between pink andblue   © Yan Dong

▼健身区域, Gym   © Yan Dong

▼休息区域, Rest area   © Yan Dong

▼休息室与更衣室, Other area   © Yan Dong

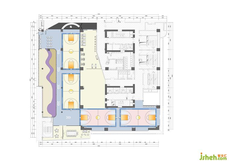
▼空间平面图

更多体育世界设计请关注聚设汇装修平台:

平介设计

设计收费:500 元/平             

擅长类型: 家装、豪宅、餐厅、店铺

在线咨询

扫描二维码关注我们的微信

深圳市聚设汇文化传媒有限公司
主编热线:15602987227
总部:深圳市罗湖区梨园路128号宝能汽车大楼416单元
佛山、东莞、成都、重庆、福州、厦门、南昌、武汉、
杭州、苏州、温州、郑州、长春、沈阳、贵阳、柳州、
哈尔滨、九江等城市设立办事处
© 2017-2021 Jsheh.com 版权所有 粤ICP备17079093号
展开
回到顶部