▼空间细部,details ©颜社视觉

▼看向窗外,Looking outside from spatial ©颜社视觉

一些简单的家具,一杯好喝的咖啡,一个人或是叫上三俩好友,倚坐在窗边,放缓气息,静静享受悠闲时光的流逝,品味斜塘老街的寂美。
Order a cup of delicious coffee here with some simple furniture, alone or with three friends, sit by the window, slow down your breath, quietly enjoy the passage of leisure time and taste the silent beauty of Xietang Old Street.
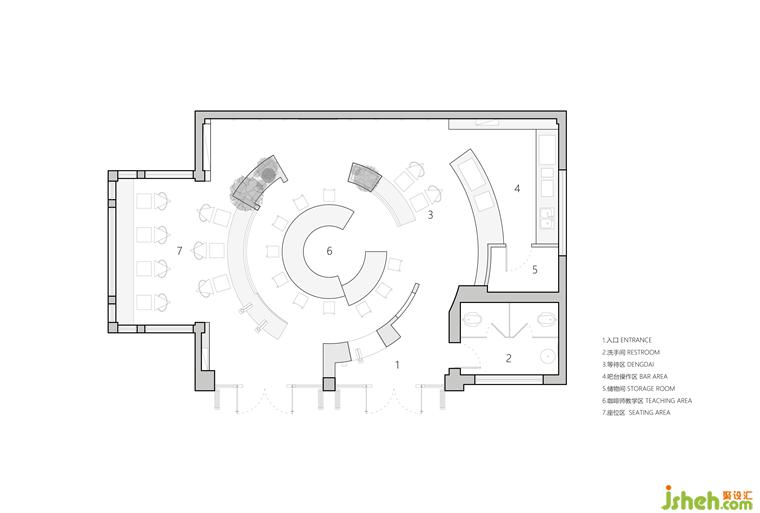
▼平面图,plan©平介设计
更多咖啡培训工坊设计请关注聚设汇装修平台: