项目名称:体验式体验厨房设计
设计方:平介设计
项目设计&完成年份:2021.11
设计团队:陈磊,李文靖,杨楠,肖湘东,杨波
项目地址:江苏省苏州市工业园区中衡设计大厦一楼
建筑面积:134㎡
摄影版权:徐英达、陈磊、木子叔叔
客户:气兮法式甜品烘培店
材料:拉丝黄钛金、长虹玻璃膜、水磨石、雅白乳胶漆
呼吸到你灵魂里温柔的气息,
那是种沉埋在暗影里的芬芳; ---雨果
Breathe the soft of your soul,
which is the fragrance buried in the shadow. - Victor Hugo
设计理念:“蒸发与升华”
体验厨房设计概念缘起烘焙加热过程中水蒸气的不断“蒸发与升华”这一过程,从而推导出一系列纯粹而有趣的造型。
Design Concept: “Evaporation and sublimation”
This design concept is generated from the process of continuous "evaporation and sublimation" of water vapor during the baking and heating, which results in a series of pure-interesting shapes.
▼ 项目外观(摄影版权徐英达)
▼ exterior view(copyright by Yingda Xu)
关于La Douce Patisserie
Background of “La Douce Patisserie”
La Douce Patisserie是一家法式咖啡烘焙店,它不仅仅是一个只售卖甜品的单一行为场所。这里可以承载这个时代消费者更多的需求与可能性。顾客能在这里选购、拍照、享受美食、社交、制作体验等。我们力求从商业模式、空间设计等各方面来重新界定甜品店的概念。
La Douce Patisserie is a French coffee shop, which is not only a place for seiling desserts, but also served for providing more needs and possibilities for consumers. People can shop , take photos, and enjoy food, communiation, and cooking experience , etc. We donated to redefine the concept of dessert shops from aspects such as business modes and space design.
▼ 轴测图(图纸版权:平介设计)
▼ axonometric drawing (copyright by Parallect Design)
前期:
Early Stage:
随着近几年来体验式经济的渗入与人们对它的理解,一个时期的“所谓风格”似乎在逐渐更迭。最初,在与店主的交流中,我们希望听到并复刻出她想要的东西。然而倾听的过程中,我们在惊讶于店主理性的同时,也渐渐懂得和理解了她的需求-即希望用最纯粹的环境来承载烘焙与咖啡。她希望这个环境不盲从、不浮躁,有足够的空间去遐想和给予、去引领最前沿的精品体验。不论是奔着咖啡的醇香,亦或是制作醇香的机器,甜品亦或是蒙德里安艺术,还是在闲适的午后突如其来的创作灵感,人们可以暂栖此处,各取所需。
With the infiltration of the experience-economy and people's understanding in the recent years,the “popular style” of a period is changing. Initially, we hope to hear and realize the owner’s wishes during the communication. However, during the process, while we are surprised by the owner’s rationality, we gradually understand her requirements -taking the advantage of the purest environment for roasting and coffee. She hopes that it will not be blindly obeyed, not impetuous, provide enough space for imagining and giving, and lead the boutique experience. Whether for coffee aroma or coffee machine, desserts or monderian-art, or the sudden inspiration in the afternoon, people can rest here.
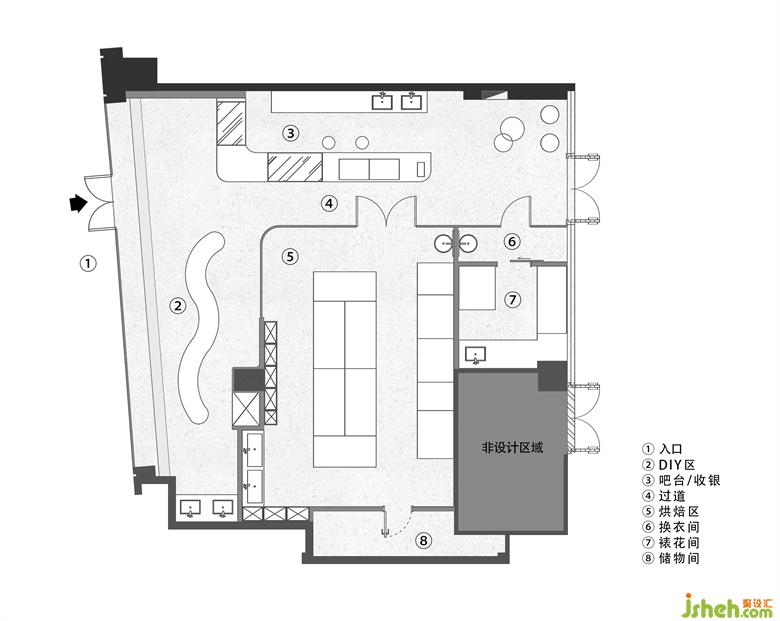
▼ 平面布置图(图纸版权:平介设计)
▼ floor plan (copyright by Parallect Design)
▼ 店铺概览(摄影版权徐英达)
▼ overview of the shop (copyright by Yingda Xu)
店铺是“以体验制作为主,甜品与咖啡为辅”的零售式体验店,我们希望以此概念营造空间特质,塑造独特的空间氛围, 以此延展店铺设计的可能性,并且将此作为法式浪漫含义的延伸。迈进店后,顾客们会立即感慨于空间的整体性。这种整体性不仅仅使产品特性的制作过程变成了一种生动的视觉体验。
The retail-style experience shop is designed with the concept of “Focusing on experience cooking, supplemented by desserts and coffee seiling”,which is aimed to create space characteristics and atmosphere for more design possibilities. Additionally, it can also be wished for the extension of French romance.
When entering the store, customers will be immediately impressed by the integrity of the space, which not only makes the production process create a vivid visual experience.
▼ 入口(摄影版权 徐英达)
▼Entrance(copyright by Yingda Xu)

入口与烘焙理念共同利用“蒸发与升华”这一理念,为这个从白天持续到夜晚的惬意体验空间带来了舒适、吸引人的氛围感。烘焙师在为客人制作甜品之时食品满溢而出的醇然香气,定会激起往来路人的兴趣,使之驻足,无形之间让人解释了店铺属性。
The entrance and baking concept use the concept of "evaporation and sublimation", to bring the comfortable and attractive atmosphere for this experience space from day to night. The food aroma overflowed during the baking will generate the interest of passengers and make them stop, and then, invisibly introduce the attributes of the store.
▼ 入口收银区(摄影版权 徐英达)
▼ cashier area at the entrance(copyright by Yingda Xu)


