欢迎光临聚设汇,装修找设计就上聚设汇!
   咨询电话:15602987227
登录    注册
聚设汇
首页 > 商业 > 济南保利和光山语样板房165户型

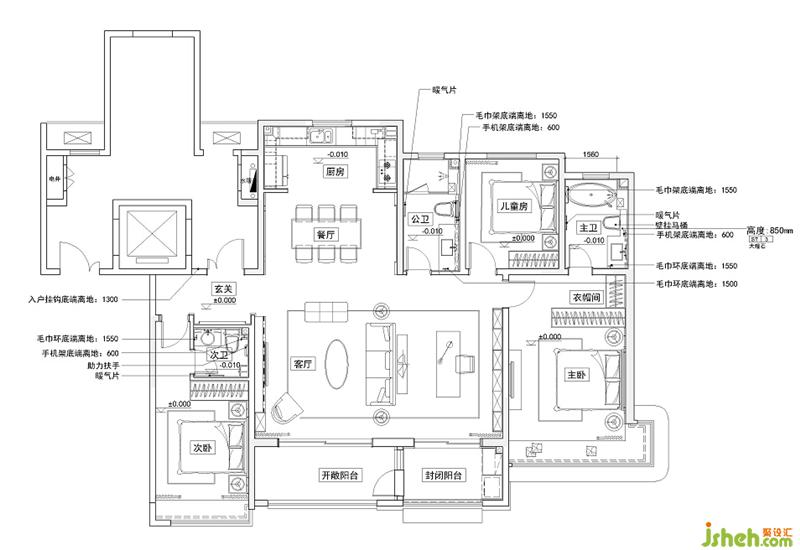
济南保利和光山语样板房165户型

根据年长老人的居住需求,老人房运用暖色系的硬装来搭配灰白的软装饰品,使空间更为温馨舒适,增加居住舒适感。样板房设计

样板房设计

上海高迪建筑工程设计有限公司 总经理 台北建筑物室内装修专业技术人员协会 副理事长 上海市装饰装修行业协会理事 上海市装饰装修行业协会装饰设

设计收费:1000 元/平             

擅长类型: 售楼处、样板房

在线咨询

扫描二维码关注我们的微信

深圳市聚设汇文化传媒有限公司
主编热线:15602987227
总部:深圳市罗湖区梨园路128号宝能汽车大楼416单元
佛山、东莞、成都、重庆、福州、厦门、南昌、武汉、
杭州、苏州、温州、郑州、长春、沈阳、贵阳、柳州、
哈尔滨、九江等城市设立办事处
© 2017-2021 Jsheh.com 版权所有 粤ICP备17079093号
展开
回到顶部