案名:成都北大资源·紫境东来府上叠样板间
主持设计:史南桥
项目总监:张翔
设计团队:宋启玉.宋美儒
设计单位:上海茂联建筑设计事务所
单位地址:上海市延安西路1590号1S室
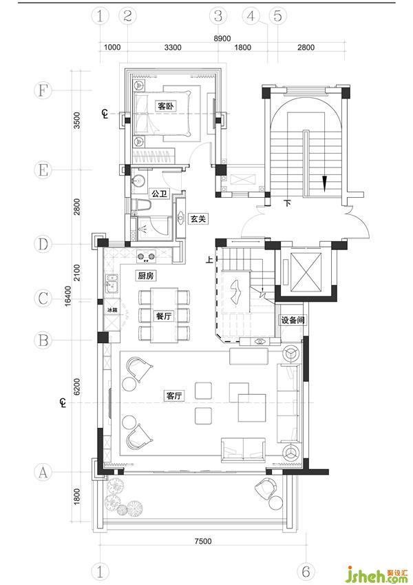
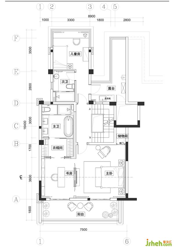
设计面积:189.2㎡
设计时间:2019/2
完工时间:2019/10
“以空间为始,至自然而终。内与外的界限已然模糊,似离而合的格局形成一种连接,让空间融入自然的不绝力量。”设计无界,释放的是更多可能。样板房设计

一层公共空间完全开敞,恢弘大气。在楼梯位置设计抬高地台及景观,丰富空间视野感受。
以天花材质的区别划分空间,增加层次感,凸显精致感。


自然的木质家具,写意的山水画,干练的线条,并运用现代块面的设计手法,营造出一种中式优雅之美。化繁为简,注重细节及比例美感,强调空间合理布局与使用功能的完美结合。

电视背景墙以对纹鱼肚白大理石搭配雅致金属博古架,提取中式文化的精髓的同时注入现代生活的气息,营造出一种简约贵气的美感。
上海高迪建筑工程设计有限公司 总经理 台北建筑物室内装修专业技术人员协会 副理事长 上海市装饰装修行业协会理事 上海市装饰装修行业协会装饰设
设计收费:1000 元/平
擅长类型: 售楼处、样板房