主案设计:史南桥
设计师:郭俊.卢勤之
设计助理:王梦晨.王晨威.潘迟迟.江冰燕
软装设计团队:刘超.闫丽.方成伟.王莹
设计单位:上海茂迪建筑工程设计有限公司
单位地址:上海市延安西路1590号1S室
设计面积:A户型:104平米
B户型:77平米
C户型:58平米
设计时间:2019/3
完工时间:2019/7
设计内容
此项目为精装样板间。
设计范围
A户型面积为:105㎡;;E户型面积为:55㎡
设计风格
E户型设计风格:现代时尚
B户型设计风格:现代温馨
A户型设计风格:现代轻奢
设计理念
对生活的积累,将有温度的设计融入中西方的文化理念,打造一个别致、摩登的居住空间。装饰诉说平凡的日常,却又处处彰显精致和得体,让人第一眼看去就心生视觉上的欢愉。
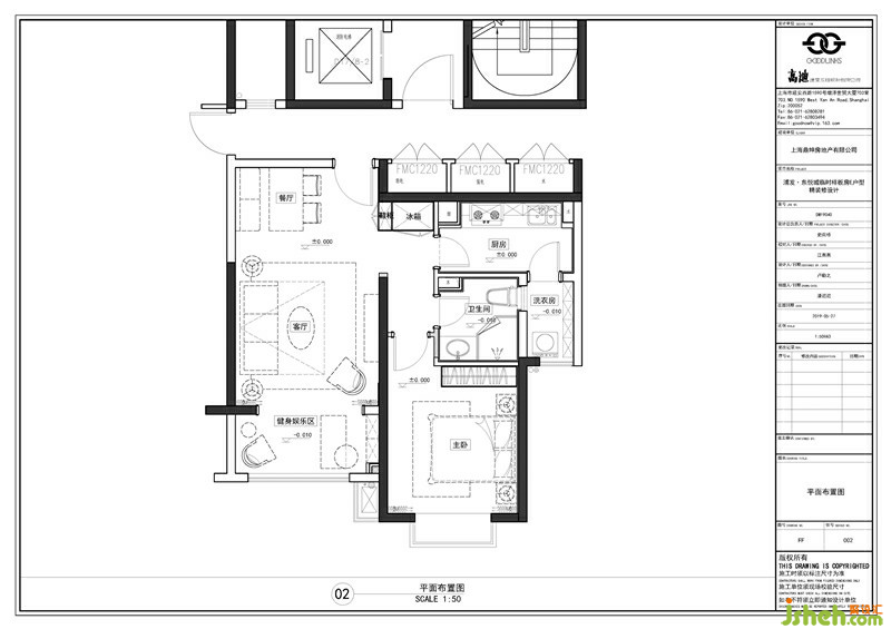
E户型
E户型为时尚精英的户型,通过现代时尚的设计手法,诠释多元化尊享空间、为都市菁英构筑全新人居华章。样板房设计
玄关
玄关侧面做了一组悬空木质收纳柜,既实用又为空间添加了视觉纵深。样板房设计
客餐厅
开放式的客厅设计,彰显空间氛围大气。金属与壁纸搭配显得空间简单明亮。在主要采光的空间领域上,试图将客、餐厅和书房区域做一个整合,透过这样的空间合并,拉长了视觉的水平象限,让人一进门回到家中即能感受到空间大而明亮的宽敞效果。

主卧
夹丝玻璃、金属线条……这些材料搭配在一起,让卧室多了一份时尚的感觉。没有了繁复华丽的花样与纹饰,偏重于现代的材质,为室内创造出一种自然简约的风范,充满了静谧、安宁。作为无彩色系的的最佳组合,他们素雅简洁,现代感十足,是家具设计中高品质的“标配”。样板房设计

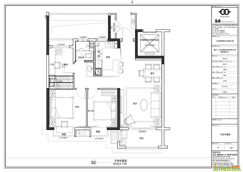
B户型
B户型作为刚需户型,既满足一家三口的居住空间,有需要满足长辈的共住需求。现代温馨的设计风格会有一种“家”的感觉。样板房设计
玄关
外户过道处设置了玄关柜,是进入空间的第一道风景,也能感受到回家的温馨。样板房设计
客餐厅
色调上,呈现现代都市感;材质上,局部墙面搭配浅色木饰面及银镜以增加空间的层次感;
开放式厨房的设计进一步加大了客餐厅空间的视觉景深;


上海高迪建筑工程设计有限公司 总经理 台北建筑物室内装修专业技术人员协会 副理事长 上海市装饰装修行业协会理事 上海市装饰装修行业协会装饰设
设计收费:1000 元/平
擅长类型: 售楼处、样板房