项目地址 I Project address:四川内江 · 金科王府二期家装设计
面积 I Square Meters:183㎡+78㎡
项目类型 I Project type:跃层
服务团队 I Service team:内江十亩设计
太阳掀开被子
月亮揉碎星光
藏于银河之中的幻想
灼烈如梦
照亮了我的窗
设计改造
—
Reformation design


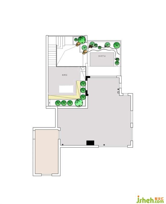
一层,二层,三层原始平面图


一层,二层,三层改造后平面图
1.一楼空间要同时解决厨房采光差、空间狭小,位置居中、整个空间布局不合理等问题。
2.二楼原始结构为开敞空间,有很强的可塑性,金科王府家装设计既要满足业主的全部使用需要,又对设计、审美、布局提出了更高的要求。
客厅
—
Living room
入户即是静谧的空间,黑白灰低调的色彩搭配缓解视觉的疲劳,金科王府家装设计无主灯简洁大方的顶面设计减少了观感上的累赘,让整个人都放松下来。