走廊
—
Passage
儿童房
—
Children room
主卧
—
Master bedroom

卧室延续了典雅大气的氛围,背景墙选择了暗色花系,显得淡然庄重。十亩家装设计在满足实用的情况下,尽最大可能保证了空间的朗阔,提升舒适感。
Bedroom continued the atmosphere of elegant atmosphere, the background wall chose dark flower Department, appear calm and solemn. In the case of meeting the practical requirements, it ensures the broadness of the space as far as possible and improves the sense of comfort.
卫生间2
—
Toilet2
家装设计最大限度拓展了空间实用性,利用色彩明暗的搭配,提升了视觉纵深。
The utility of space is expanded to the maximum extent, and the visual depth is improved by using the collocation of light and shade.
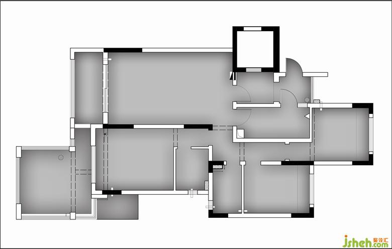
原始结构图&平面设计图
—
House type&Plane design

更多家装设计请关注聚设汇装修平台: