项目信息
项目地址 I Project address:四川内江 · 金科王府
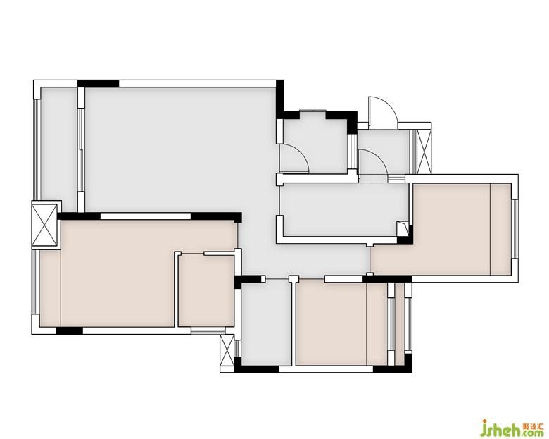
面积 I Square Meters:133㎡
项目类型 I Project type:平层
服务团队 I Service team:内江十亩家装设计
服务模式 I Service mode:全案设计+施工
# 美之邂逅 #
烟花很美
如你我的相遇
自由、沉醉、浪漫与爱
交织在绚烂的夜空
绽放开来
家装设计惊艳全场
屋主需求
—
The ownes needs
温馨简单的三口之家,小朋友正读小学,故卧室两间即可满足居住需求。另一房间则作为综合性区域,家装设计兼具书房、茶室、收纳、独处的多功能空间,可接受开放式布局。男主人偏爱低奢有质感的设计,可接受混搭风格。
家装设计改造
—
Reformation design

①家装设计原始户型的入户直对客餐厅,缺少过渡部分,与空间所表达的含蓄情感不相吻合,故略加改动增加了玄关。同时用矮柜来规划人的行进动线,避免了磕碰,更有章法。
②结合屋主的生活习惯,压缩了原本的厨房大小,出了部分空间给玄关。
③家装设计改动了主卫的布局,整面墙的定制衣帽柜美观大气,增加收纳功能。
④空间改动后客餐厅方正大气,能够容纳宽大豪放的意式家具。墙面的暗黑调和法式的浪漫纹样混搭出彩,碰撞出戏剧化的火花。家装设计
⑤灯光设计体现出层次感,射灯、灯带、主灯、壁灯满足空间的多样化需求,营造出丰富的家庭氛围。
⑥创意浪花雕塑的选择富有寓意,家装设计体现出屋主不俗的格调。
玄关
—
Hallway

客厅
—
Living room
踏入客厅,目之所及,家装设计整个空间通透阔朗,亮面地板的花纹像水一样的绵柔悠长;精致的吊灯一亮,便是群星灿烂。

电视墙的黑与沙发墙的白是明与暗的博弈,家装设计充满异域风情的吊顶纹饰混搭出一种鲜活感,阳台的一端是壁炉,暖光和深色空间形成对撞,让家有了温度。