⊠ 项目地址 / 深圳 南山
东关·乐尚林居Address / nanshan shenzhen
◫ 项目面积 / 79㎡Project area / 79㎡
▣ 设计机构 / 时光筑造空间设计Design Organization / SGZZ interior design
/
业主留法多年,钟情于法式老公寓的独特韵味,回国后自创了一个手袋品牌,是一名独立设计师,因此在审美上也有一定的见解,十分清楚自己想要一个什么样的家,本案是完全基于业主的喜好,实现了她理想中的法式公寓风格。
空间布局是一大亮点,由于业主一个人居住,我们将三房改两房,通过两扇法式双开门,法式公寓风格将起居室与卧室形成环道关系,卫生间与衣帽间居 中,洄游动线令空间充满趣味联动感。客厅依循经典法式布局,沙发围绕壁炉展开,整体风格纯正且典雅,老公寓的调性优雅隽永。
软装则是法式风格的灵魂之处,业主强大的收藏癖让空间耐人寻味,且十分尊重原创设计,家具都是进口原版,独特且高级的审美,丰富且精致的物件充满每个角落。我们用专业的知识去把这些美好的东西进行梳理对比,使之合理存在于空间,每一隅角落都和谐美好,共奏经典高雅的法式之风。
—
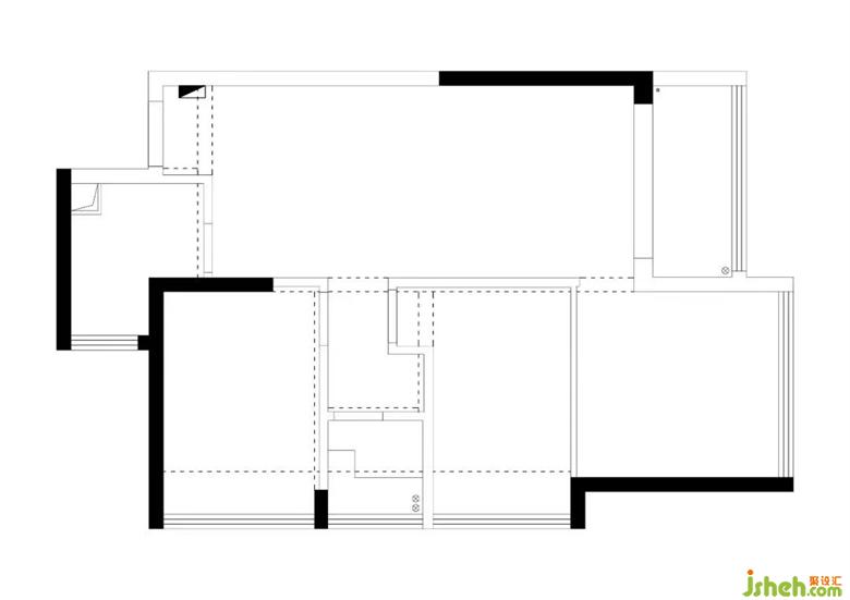
户型解析
Design analysis
常规的小三居结构,客餐一体,厨房不大,由于业主一个人居住,户型上我们做了较大的改动,实现业主心中的法式公寓风理想家。
#1、前厅狭长,进门处需合理归纳利用空间;
#2、厨房与餐厅极其拥挤,功能尺度得不到满足;
#3、原书房紧凑,每个空间采光性、私密性不是很理想,需要重新考量;
#4、卫生间需要考虑猫咪的生活习性;
#5、需要一间独立衣帽间、化妆区的需求;
—
平面方案
House type structure

/改造亮点/
本案的布局也是一大亮点,一人独居给了我们很大的操作空间,按照业主生活习惯,整合出独具一格的居住环境:
➊法式公寓风格利用法式特点,打造一个对称的双开门关系,通过两道门进入到不同的空间,中间通过一条走廊连接起来,形成一个环线的关系;
➋三房改两房,把其中的一间房一部分分给家庭厅,一部分分给洗手间,让空间体验感更舒适一些;
➌客厅以围合方式展开,符合法式风情特点,不刻板不拘束。全屋收纳做到了最大化,每一寸空间都物尽其用。
01.
A LIVING ROOM
经典 生活气
客厅布局方式完全契合法式风情,沙发围绕壁炉展开,法式公寓风格搭配石膏雕花灯盘以及格式装饰物件,纯正典雅的法式韵味不彰自显,由此奠定全屋基调。
壁炉居中而置,两侧以收纳柜对称展开,除了做书架外,法式公寓风格还能展示各种摆件以及装饰画,丰富空间格调,单人沙发款式各异,空间灵动且趣味十足。

电子烟雾壁炉,采用纯正的法式造型,奠定客厅格调,电子火光暖意洋洋,法式公寓风格堆砌的书籍营造慵懒的书香氛围,法式公寓的情调跃然纸上,生活精致且优雅。
典雅的中古家具嵌入角落,业主各式各样的香薰以及收藏,遍布家中各个角落,密合情感需求,扩充空间魅力,现出业主独特的个人品味,以及对家赋予的情感。
法式复古玻璃门连接阳台区域,奶白配色轻盈温柔,法式的优雅中多了几分治愈感,家庭氛围令人沉溺,舒缓放松。
阳台铺贴黑白花砖,尽展复古美学,大株绿植营造树下摇椅的休闲氛围,法式公寓风格在精心布置的阳台空间里,放慢呼吸,感知能力在放空的时间里变得放松起来,这是一个难得的时光,去慢慢体会对家的情感和记忆。