⊠ 项目地址 /深圳福田香格丽苑家装设计
Address / futian shenzhen
◫ 项目面积 / 125㎡
Project area / 125㎡
▣ 设计机构 / 时光筑造空间设计
Design Organization / SGZZ interior design
【业主憧憬】
谱写富有清新,甜而不腻,静谧治愈的现代奶油宅
厨房告别逼仄拥挤,实现开放式中西分厨布局,动线舒适,且
改变全屋格局面貌,更加宽敞明亮;
深圳福田香格丽苑家装设计解决收纳难题,各区域收纳完善,告别脏乱差;
实现童趣儿童房,珍贵的童年时光,不留遗憾。
本案是一个精彩的老房改造案例,不仅风格上焕然一新,经过空间的拆改,布局上也优化许多,实现了风格与布局的双赢。
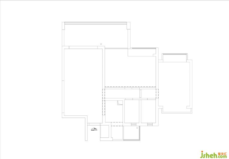
平面方案
House type structure

空间布局较为常规,但空间利用率不高,尤其是入户区较为狭窄,厨房也较为拥挤,影响生活质量。
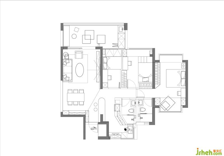
设计亮点
Renovation points
01
入户做了大大的调整,拆除玄关连接厨房的墙面,圆弧吧台嵌入承重墙,作为空间隔断,实现中西分厨的实用布局;
02
深圳福田香格丽苑家装设计原始厨房墙面全部打开,利用卫生间的角落空间,进行高效过渡,充分打造储物空间,大大提高空间利用率;原始的厨房区域打造成开放式西厨,中厨则利用生活阳台隐藏在角落,动线方便且远离油烟;
03
次卧空间一分为二,一边是儿童睡眠区,一边是娱乐学习区,空间独立互不干扰,符合屋主的要求;
04
阳台空间不浪费,一边设置盥洗区,另一边打造休闲区,工作娱乐两不误。
屋主喜欢奶油色系,希望打造偏女性柔美的风格,但是单纯的奶油色系难免过于“甜腻”,于是我们适当加入牛油果绿来调节整个空间的色彩关系,深圳福田香格丽苑家装设计注入活泼清新的视觉观感,且中和奶油色的“甜腻感”,呈现“甜而不腻”的奶油风格。
/ 玄 关 /
ENTRYWAY
玄关柜储物空间丰富,抽屉、鞋柜、衣柜满足不同的收纳需求,开放格紧挨入户大门,深圳福田香格丽苑家装设计摆放香薰以及装饰镜,方便出门时整理仪表。
入户右手边则是西厨吧台,作为空间隔断“承上启下”。小巧壁灯搭配精致台灯,点亮回家的仪式感,烘托吧台的小酌氛围,提高生活优雅度。
/ 厨 房 /
KITCHEN
开放式中西分厨,优化空间结构与采光,深圳福田香格丽苑家装设计让整屋更加宽敞明亮。斜切转角不仅扩大了空间,且大大提升了利用率,加强了收纳能力。牛油果绿墙漆从玄关蔓延客厅,建立空间联系感,丰富整屋色彩,清新别致,让奶油风呈现“甜而不腻”的效果。
/ 餐 厅 /
DINING ROOM
墙面用波浪板强调餐厅区域,球状吊灯精致独特,深圳福田香格丽苑家装设计搭配宽敞餐桌,圈出舒适的就餐氛围。
利用吊顶结构推出纯白餐边柜,整体美观统一,台面摆放精美杯具与小家电,展现屋主的高品质生活。
网红餐椅经典时尚,黑色弧形线条搭配藤编材质,丰富空间质感,奶油色系中点缀黑色,更加优雅高级。