项目地址 / 深圳 南山 东关·乐尚林居家装设计
Address / nanshan shenzhen
项目面积 / 110㎡
Project area / 110㎡
设计机构 / 时光筑造空间设计
Design Organization / SGZZ interior design
一对慢节奏的夫妻,和我们一起完成了这个属于他们的爱巢,业主尽善尽美的追求每一个细节,历经快一年的时间,我们慢慢将房子打造成他们理想的家。
根据业主的喜好,我们摈弃了传统北欧风格的做法,深挖北欧风格的实际元素,比如铁艺、屏风、红砖墙等等,深圳南山东关乐尚林居家装设计将其融入到现代简约的基调中,整体清爽简约的同时,多了许多抓人眼球的细节,有种令人眼前一亮的震撼效果。
除了风格上的出彩之处,布局上依旧可圈可点,整体开放通透,加入地台飘窗形式增强家的温馨惬意感,一扇书墙横空出世,居中而立,洄游动线串联起公区所有角落,书架的镂空感让整体神秘且通透,空间隔而不断,爱意自由穿梭。
—
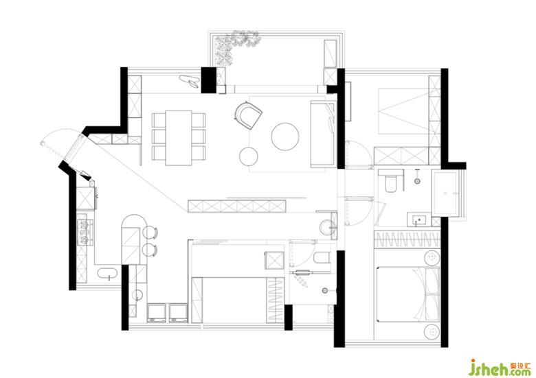
户型解析
Design analysis
原始空间为四室结构,因屋主实际生活需求,保留一间主卧和一间客房即可,在此基础上实现中西分厨,以及无限追求的开放式布局,灵活自由。
#1.斜入户格局,玄关无储物,动线需要重新考量;
#2.对储物的考虑,过道合理利用;
#3.需要考虑阳台和书房、独立洗衣区的位置;
#4.为避免空间浪费,可将4房可改3房;
#5.重新定义厨房空间,注重家庭交流与互动;
—
平面方案
House type structure

/改造亮点/
➊客餐一体,阳台设置为地台,公区更加随性舒适;
➋深圳南山东关乐尚林居家装设计借用厨房边的小卧室打造成西厨空间,形成中西分厨实用布局,采用吧台过渡,半开放式厨房更加符合中国家庭的实际情况;
➌空间中心设计大面书架,超大洄游动线令布局神秘且充满层次,空间灵活多变。
01.
A LIVING ROOM
慵懒 治愈
进门第一视角。本案汲取了北欧风的一些实际要素,摒弃传统的北欧做法,深圳南山东关乐尚林居家装设计将铁艺屏风、拱门、红砖墙等等这些元素与现代简约相结合,实现材料的多元化运用,整屋氛围更加灵动自由。
沙发背靠阳台摆放,一改传统的布局方式,深圳南山东关乐尚林居家装设计将电视墙与书墙结合起来, 虽然北欧元素满满,但整体简洁清爽,年轻有活力,呈现出咖啡馆的随性慵懒氛围。
豆腐块沙发灵活拆解,十分符合本案氛围,阳台垭口用红砖镶边,成为客厅视觉亮点,凸显空间层次,深圳南山东关乐尚林居家装设计让北欧元素完美融入设计中。中间悬挂精巧灯牌,突出阳台的独立感,彰显精致有爱的家庭氛围。
去茶几更显随性宽敞,地毯与沙发同色,北欧元素作为空间最大点缀,其他装饰应该尽量简洁,举重若轻实现风格的最大效益。
沙发一角艺术感满满,钓鱼灯勾勒出柔和线条,装饰画落地摆放,深圳南山东关乐尚林居家装设计适度留白反而呈现别样的艺术风情,格调满分。
电视墙以一面居中的镂空书架拉开序幕,作为隔断灵动有趣,四周的洄游动线让居家生活自在多变,丰富空间层次感与趣味性。深圳南山东关乐尚林居家装设计实用性自然也不容小觑,解决屋主的书籍收纳问题,大小不一的模块组合也是空间的精彩展示架。