项目地址 / 深圳罗湖金地翠堤湾家装设计
Address / luohu shenzhen
项目面积 / 89㎡
Project area / 89㎡
设计机构 / 时光筑造空间设计
Design Organization / SGZZ interior design
出彩的软装饰整个风格的灵魂,一件件中古家具让整个家充满了故事感,像英国老电影里的乡村小家,一帧帧流金岁月的复古气息,带来极致的视觉效果,地道而纯粹,深圳金地翠堤湾家装设计仿佛穿越般身临其境,泰晤士河畔的伦敦铁塔近在咫尺。
—
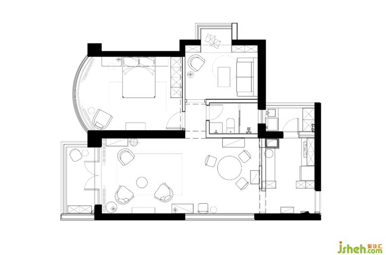
户型解析
Design analysis
#1.两室一厅中小住宅,承重墙比较多;
#2.户型上没有大的改动,尽可能优化布局,提高空间利用率;
—
平面方案
House type structure

/改造亮点/
➊业主为一人独居,保留一间主卧,次卧改造成独立书房,符合业主生活需求;
➋客厅布局摆脱刻板印象,单人沙发围坐,随性慵懒,契合整屋英式复古氛围;
➌厨房边的生活阳台承担盥洗晾晒重任;
➍深圳金地翠堤湾家装设计主阳台负责修身养性,作为客厅的延续,惬意休闲;
01.
PORCH
英式 格调
深圳金地翠堤湾家装设计配合纯正的英伦之风,玄关以复古花砖拉开序幕,搭配中古桌案以及黄铜镶边装饰镜,出门整理仪表也满是仪式感。英国人家家户户必备的雨伞架也被我们搬进玄关,以装饰的角度赋予空间情怀与格调,一个小物件成功将风格写实。
02.
KITCHEN开放
治愈
墨绿色橱柜呼应花砖的颜色,高饱和度色彩浓郁且复古,搭配小阳台的充足采光,深圳金地翠堤湾家装设计空间摒弃压抑尽展气质格调,百叶窗面向客餐区域,丰富墙面质感,加强空间的流动交流性。
03.
RESTAURANT
英伦 复古
拱形门洞隔断玄关与厨房,进入家庭核心区,优雅的白色蕾丝帷幔丰富空间层次,随意散落,将独特的英式浪漫融入生活点滴,伴随着挂钟钟声,思绪已穿回伦敦泰晤士河畔。
红木靠墙椅搭配同材质边几,复古台灯以瓷器为底座,边几的黄铜金属镶边呼应挂画边框,组成韵味十足的餐边一角,深圳金地翠堤湾家装设计一件件“古老”色彩的物件,协调拼凑出一副英伦复古家。
每一面墙都有自己的主题与故事感,相互独立且相互协调,让丰富的软装布置大放异彩却不显杂乱。深圳金地翠堤湾家装设计餐厅过渡客厅,秘书柜搭配装饰画,摆放上精美物件,为整体风格添砖加瓦。
中古款餐边柜肉眼可见的质感,雕花的木纹纹理使空间氛围更加浓郁,墙面的挂盘以及装饰画形成包裹对称美感,三角置物架嵌入角落,每一隅空间都相得益彰,流露出别样的复古风情。