户型:三室
面积:145㎡
位置:广东,惠州
设计机构:时光筑造空间设计
说在前面
本案屋主是一对年轻夫妻,女主人有着爽朗的性格,平时的穿搭比较时尚摩登,喜欢一些朋友的聚会,以及自由开放的空间氛围。
入住后夫妇俩考虑生小孩,所以需要考虑儿童的生活场景,我们根据屋主的需求,将客厅书房打通,与阳台形成洄游动线,空间更显宽敞通透;入户门对面靠墙打造“木盒子”,作为孩子的成长空间;3卫改2卫,将两个小卫生间合二为一,实现更多功能性……
我们将空间风格定为现代简约,同时在各区域精心陈列各种艺术品,为家增添丰富多彩的情趣与艺术感受,让空间呈现出一种曼哈顿摩登公寓的感觉,实现居住者对生活方式的追求和个性化的主张。
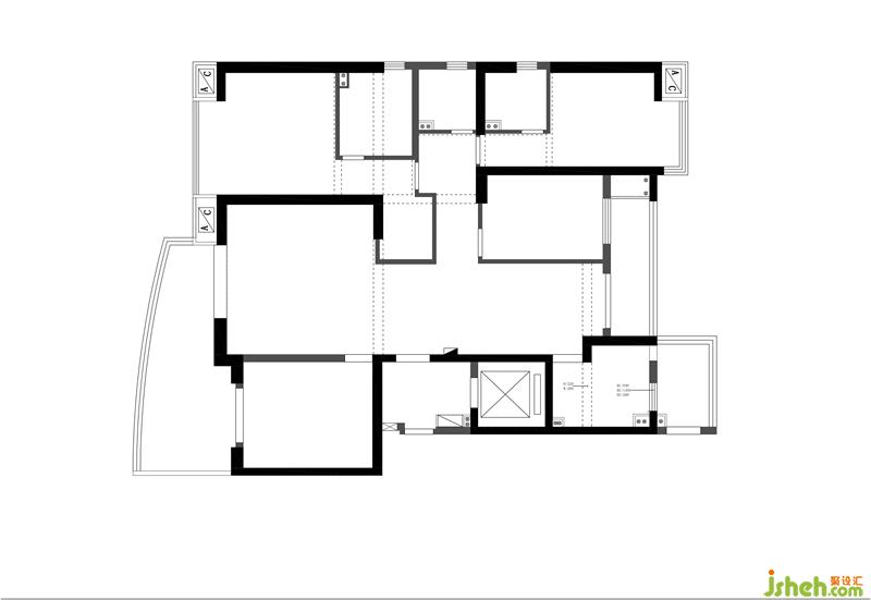
户型图
原户型缺陷&屋主需求:
1、厨房面积小,希望有更大的操作台面,可以做到中西厨分开;
2、希望公共区域空间开阔一些,能和阳台形成灵活的互动关系;
2、好客的屋主希望公区能满足聚会待客需求;
3、入住后屋主会考虑生小孩,所以后期需要考虑儿童的生活场景。
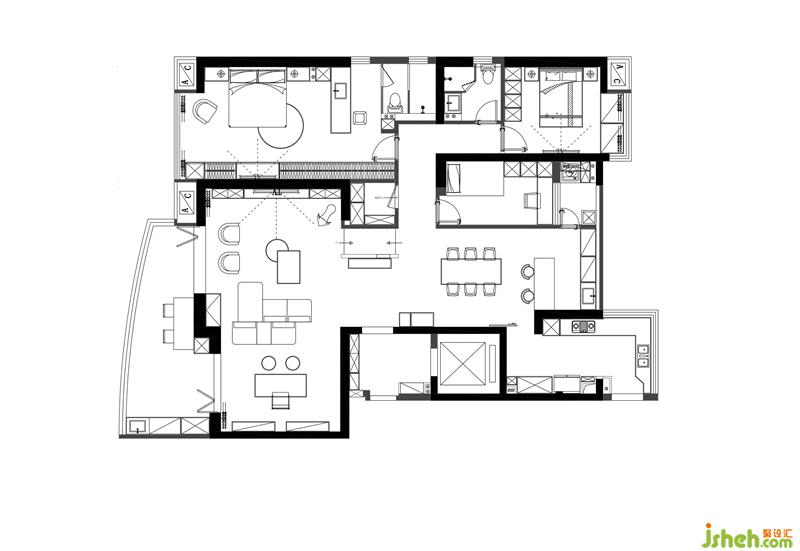
改造亮点:
1. 在入户门对面靠墙打造“木盒子”,作为玄关端景和孩子的成长过渡空间;
2. 打通书房客厅,更显开阔敞亮,空间与阳台串联,形成灵活实用的洄游动线;
3. 借用部分生活阳台空间,在餐厅增加西厨吧台+水槽,丰富餐厅区功能性;
4. 将小阳台与厨房合并,增加操作台面和使用面积;
5. 将主卧衣帽间的门开到走廊,打造独立储藏室,满足屋主更多储物需求;
6. 将客卫与主卫合并,扩大卫生间面积,将洗漱区移到卧室,实现干湿分离设计,同时将次卧门内推,将自带的卫生间改为客卫使用;
一梯一户的户型具有较好的私密性,我们将入户玄关的收纳集中在入户电梯空间,在进门后右侧大白墙上安装拱形洞洞板,兼具美观性和实用性,同时不占多余空间。
入户门对面靠墙做了一个“盒子”作为玄关端景,在视觉上对空间进行过渡缓冲,墙面镂空设计,暴露出天然木饰面,木头本身的温润质感让人一进门就感受到家的温馨。
墙面设计一道搁板,在镂空处放置艺术摆件,在将进门的视觉中心转移至此,从而化解进门见厅的尴尬局面。
端景后方从天花板到墙地面,整个空间由木饰面包裹,打造出一个“木盒子”走廊空间,显得更加舒适自然。
从玄关进入客厅区域,靠墙定制一整面墙电视柜,提供巨大的储物空间,开放柜和封闭柜结合,满足收纳、展示等多样化储物需求,搭配无把手设计,更显整洁美观。
电视柜设置推拉移门,将电视巧妙隐藏,通过创意推拉的方式,巧妙实现电视柜与书柜的自由转换,既阻隔了灰尘,减少视觉负担,又兼顾了屋主看电视、阅读的需求。

拆除书房与客厅之间的墙体,视觉上显得更通透开阔。低矮款的皮质沙发降低视觉中心,能有效缓解中央空间吊顶带来的压抑感,同时作为天然隔断将书房、客厅分隔开来,保持空间的通透性。