Area / 143㎡
Layout / 3室2厅2卫
Type / 精装房改造
Price / 32w
Mode / 全案设计 + 造梦家施工 + U然木作
Design / © 拾光悠然设计
Photo / © 独立空间摄影师 刘斌
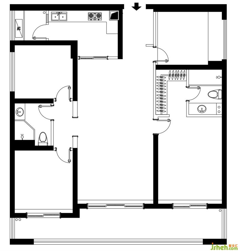
❶ 整屋户型方正是房屋的优势部分,作为轻改造空间无需太多的拆除动作
❷ 主卧、客厅背景墙与吊顶造型是精装房都会出现的硬伤
❸ 原始柜体造型丑陋,柜内功能划分不合理
引导用户明确需求,对重要空间重点打造
❶ 对房屋的硬装改造主要对室外景观阳台区域的纳入与分割,重组后的阳台帶給主臥、客廳、多功能室更多的空間
❷ 屋主对影音和游戏的需求比较重视,因此我们将客厅需要放置激光电视的区域做得尽量简约干净,避免复杂的造型影响观影体验
❸ 原始书房是整屋中视野与采光相对较好的区域,舍弃连通的阳台,变成独立的房间,将书桌设置在采光位置并配置可全开窗户

拆除入户造型复杂的玄关柜体,替换为造型更干净整洁的柜门,在功能性上增添带有换鞋凳功能的收纳柜。
由于家庭的常住人口是2-3人,在不大改造房屋结构的情况下,根据屋主需求与实用性考虑将入戶左手第一間房作为小两口和未来宝宝的独立衣帽間。
左右两侧分别做一组柜体,延续玄关柜的材质,保证整屋风格调性统一,同时补充了每间卧室有限的收纳空间。

客餐厅墙面乳胶漆部分我们选择了温柔的奶茶色。
白色石材餐桌与一桌佳肴的碰撞,烟火气便从柴米油盐中散发出来。黑白男孩女孩头像挂画点缀了光秃的墙面还丰富了小两口就餐氛围,挂画的内容印证着两人的幸福生活。
藕粉藤编餐边柜除了补充餐厅的收纳,同时还能摆放着二人回忆的幸福小物件,家因为被这些充满意义的小物件填满才被叫做家。
客厅的电视背景墙区为了后续与配套的激光电视放映仪器更契合,而专门现场打造的一个包含着350*700MM抽屉的地台区域,两侧由岩板包裹着地台表面。
承受住仪器的重量、简约的同时不失质感,这个专为影音享受而打造的区域也是预算分配相对较高的区域之一。
电视背景墙以简单的木格板拼接做造型,一直衍生到主卧的隐形门,干净的造型在观影时不会喧宾夺主。


手工抽象油画点缀着硬朗的墙面,柔和的笔触与抽象线条的地毯相呼应。米色沙发的丝绒质感搭配白色单人椅相互呼应。
阳台分割部分空间与主卧,重建起的墙体做定制储物柜满足客厅区域的收纳。
大面积落地窗造就了优秀的视野,干净半透的亚麻窗帘保证了隐私同时让光变得不再耀眼。