豆蔻
“娉娉袅袅十三余,豆蔻梢头二月初。”「豆蔻」的名字来源于杜牧的「赠别二首」。这里以中式古建纹案,其上立体的构图、虚实的写意、朴拙的色泽,与素锦亚麻、玉石摆件、盆景瓷器等东方饰物共同抒写诗意风华,空间别有一番清雅艺韵。包厢设计中的宋画透出中国古典韵味,结合精巧雅致的陈设,感受东方精神气韵的流露。
银月

“青山隐隐水迢迢,秋尽江南草未凋。二十四桥明月夜,玉人何处教吹箫?”「银月」的名字来源于杜牧的「寄扬州韩绰判官」。取自瓷器的靛蓝色点缀空间,背景墙的装饰将满月与弦月融合表达,抽象的美将空间的戏剧化淋漓尽致的表达,人文的情感与表达语言相互融合,将人置身于“情景”之中,感受温润雅致的新派意境。
遣怀
「遣怀」的名字来源于杜牧的同名古诗「遣怀」,“落魄江南载酒行,楚腰纤细掌中轻。十年一觉扬州梦,赢得青楼薄幸名。”统一和谐的柔和米色稳定着空间的平衡,奠定了沉稳宁静的基调,简练流畅的线条为包厢注入清雅隽秀的气质,温厚敦实的木质搭配烟灰色系布艺,质朴素净,浓淡相宜。
背景墙上干净清透的石材色营造出自然意境,与木制的搭配间有着最契合的交点,空间内的陈设之物在光影藏纳间、在虚实互映中,交织出自然的诗意与东方的风雅。餐厅在端正的序列格局与简净的美学风貌中,构建起就餐礼仪与氛围。
餐厅设计师在承袭传统的基础上寻求本质根源与立意来营造空间,在现代建制的极简之美中,巧妙地纳入东方意美与浓郁的历史人文,赋予空间绵绵不尽的雅致风韵,让食客在扬州的繁华深处,静品滋奇臻品。
分析图DIAGRAM
△分析图
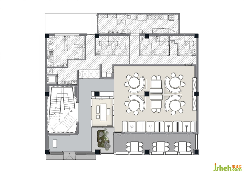
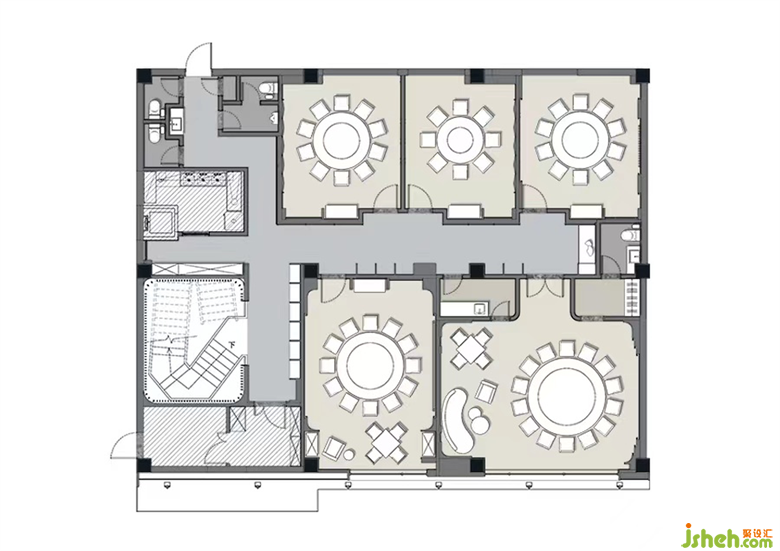
平面图FLOOR PLAN
△一层平面图
△二层平面图
更多餐厅设计请关注聚设汇装修平台: