欢迎光临聚设汇,装修找设计就上聚设汇!
   咨询电话:15602987227
登录    注册
聚设汇
首页 > 家装 > 新城花园

新城花园

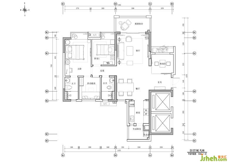
主人房舒适宽敞,轻巧的屏风隐约带出一丝空灵飘逸的感觉,配合空间的低饱和度的暖调,体现出整体空间的低调奢华。而客房灵透舒适,体现出细致高雅的生活品味。

佛山装修公司

小卧室可以配套主人房作为衣帽间也可以单独使用作为一个小卧室,呈现出开放、流动和丰富性。

遵循简单而舒适的,打造出一个空间能够与人交流的蔓延、宁静的空间。

易思维室内设计 设计总监

设计收费:面议 元/平             

擅长类型: 餐饮,办公,家居住宅

在线咨询

扫描二维码关注我们的微信

深圳市聚设汇文化传媒有限公司
主编热线:15602987227
总部:深圳市罗湖区梨园路128号宝能汽车大楼416单元
佛山、东莞、成都、重庆、福州、厦门、南昌、武汉、
杭州、苏州、温州、郑州、长春、沈阳、贵阳、柳州、
哈尔滨、九江等城市设立办事处
© 2017-2021 Jsheh.com 版权所有 粤ICP备17079093号
展开
回到顶部