TIME| 2020
STYLE | 89㎡ 后现代混搭
SPENDING|25w
ADDRESS | 福田 深物业金岭
DESIGNER | 启物设计 原沐
前言
房子不仅仅是用来居住的,后现代主义者更加注重人的精神世界,对存在的感知以及人与物的交流、对话。说是”浪漫实用的Kelly”风。家里大大小小的精致物件,很多都是Kelly珍藏或者淘回来的,每件物品都有他的独特意义
本次精装房改造结合屋主的喜好和高审美,整体风格是糅合了北欧轻奢复古多元素的后现代风格,更确切,对于精致控Kelly来说,高级感的艺术品是生活仪式感的存在。而我们室内设计师的职责就是找到他们与空间的联系,将他们放在合适的位置,而不是简单的放在应该放的位置,使他们和空间更加和谐地存在并且贴近居住者的意义和习惯。
原本的精装房地砖和墙面背景都是亮面的,摆上琳琅满目的物品,整体空间就会显得花哨,整体空间改造以平衡且包容的黑白灰为中间调,融入拆解的几何元素造型(方与圆),打造别致一格的精致浪漫居所。
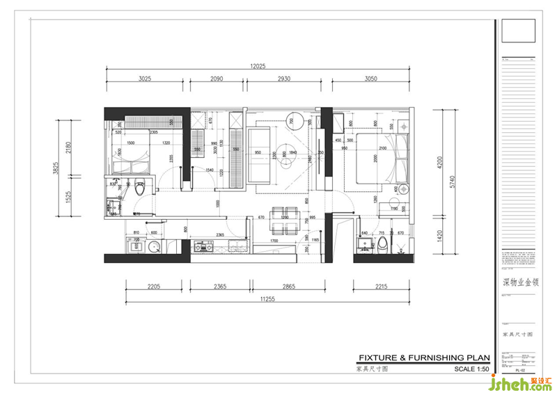
户型图
Kelly提供的原始户型结构是对称的,户型方正,结构方面并没有做改动,室内设计师结合居住者需求重新优化了功能布局。
因为新房主要是Kelly和先生居住,父母偶尔过来,室内设计师把其中一间房改成了衣帽间,同时解决了冰箱因为厨房太小又不想占用餐厅空间而无处安放的窘迫局面(衣食皆目光所及,早晨换完衣服可以顺手拿走冰箱里提前准备好的面包和牛奶)。
父母房改变床头朝向,避免开门见床头,采用榻榻米+衣柜组合打造多功能空间。
全屋收纳除了多功能房、衣帽间以及电视柜,采用固定式的定制柜体形式,其他家具收纳皆是可移动变化的,方便主人自由组合变换。
客厅
原精装房现场图片
取消电视和沙发背景造型,改用简单大气的浅灰色墙漆打底,平柱到顶的电视柜,满足收纳的同时让空间更加规整。
中间室内设计师采用黑色不锈钢做镂空处理,刚好放下60寸的电视,拉大开间视觉效果同时丰富背景墙造型感,搭配复古棕的马歇尔音响,实现客厅的视听功能。
恰当尺寸的家具摆放可以重塑空间的尺度和包容感。对于三米开间以内的客厅选择深度在一米以内的两或三人位轻巧造型沙发搭配一个可移动沙发凳,避免笨重落地L型沙发,让空间显得逼仄。地毯选择与茶几一样大小,地面空间视觉上就会开阔很多。
好物推荐:(舒梵)这款一圆一方组合茶几显空间层次,大理石搭配长虹玻璃,虚实交映,透着朦胧的雅致之美。
同色系亚克力收纳架放置杂志书籍,百搭造型随处移动,在哪里阅读就移到哪里。

双层置物边几,钢化玻璃面板搭配牛皮布袋,装下主人所有的慢时光。
透明的世界总能带给人们更多想象的空间,而多彩的世界又能让人们感受生活的精彩。
窗帘选择与棕色沙发撞色的宝蓝色,让空间更加艺术且个性。