项目时间:2019
项目面积:63㎡
项目风格:北欧
项目造价:25w
项目地址:福田 御景华城
设计公司:启物设计
主案设计:易冉金
这次启物遇到了行动力超强的李女士。需求浓缩成两小句“先收纳再美学”“家有小棉袄,材料要环保!”
打开门是柔和的浅灰色墙面,少许的木色做点缀,手扶过略带摩擦感的布艺。这个家找不到一处刻意造型的痕迹。装修设计
《 Kitchen 》
厨房台面不算宽裕,把微波炉做到吊柜上节省台面!水槽墙面是磁性刀架,案板直接扣在水槽上,方寸之地竟大有文章!
冰箱后留了个奇怪的窗洞,起因是解决开放式厨房没有窗户,燃起公司不许开通的问题。冰箱一盖,竟无成本的解决了。
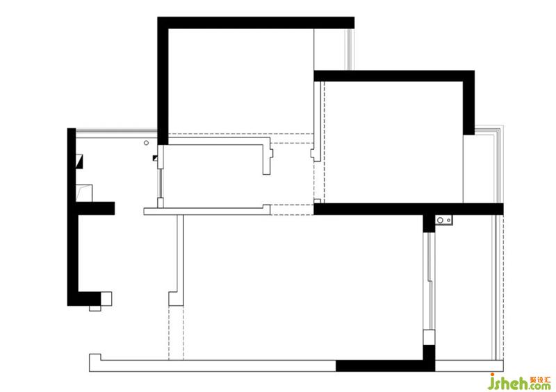
《 Plan 》
原始的屋况能看出:生活阳台要经过厨房,卫生间太小不能干湿分离,卧室衣柜摆放老大难!装修设计
1:生活阳台门洞改成从卫生间出,厨房争取出冰箱位!2:卫生间的台盆用餐厅的面积,GET干湿分离好清爽!3:主卧衣柜在门后,收纳大隐形!
《 Dining room 》
厨房仅拆除两堵墙,就能更靠近彼此,感受一餐一饭的温暖。吊架从网上购买,马克杯统统挂起,好用好看!
《 Living room 》
柜子反复沟通,确保留出钢琴空位。不全做满柜,小户型更透气,电视机待装。装修设计
