欢迎光临聚设汇,装修找设计就上聚设汇!
   咨询电话:15602987227
登录    注册
聚设汇
首页 > 家装 > 告别小清新

告别小清新

设计公司:启物设计

主案设计:黄鑫

项目时间:2019

项目面积:87㎡

项目风格:现代 北欧

项目造价:35w

项目地址:南山 华润城一期

90后开跑车 从事服装生意的女屋主 JiaQi 在看腻了小清新后 决定让新家来点不一样的感觉 暗与Cool 分明与凌厉 是数度“击退”男屋主Lee后定下的空间表情。

JiaQi 对暗色系情有独钟 均衡小户型的现实情况 我们将元素精简 用Cool表达出独有态度的空间。

熔岩灯 烛光 有温度 marshall 音响播放不同的歌曲 心境也随之切换着

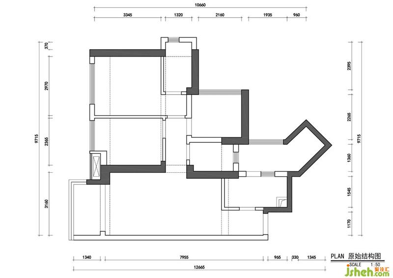
《 Plan 》

标准的户型 却不适用于二人世界 为了屋子更贴近屋主的心声 我们进行了客制化设计

▶厨房移到异形阳台 原位置解放 客餐厅变大

▶公卫也适当往阳台移动 内部尺寸使用舒适

▶小房间改为衣帽间 主卧升级成 完美的套房

《Foyer 》

画作《Rooms by the Sea》 置身于海面上的房子 空 Edward Hopper 传递出明亮又寂寥的美感

《 Living Room 》

天花的上部穿戴黑色乳胶漆长边 在平面的天花顶留出暗缝 填入黑色不锈钢 Cool的同时 不忘精致 恍惚间天花竟像漂浮起来一样

在灰色线条的混沌中 寻找“我”的质感 金属是“我”的坚定 蓝色窗帘是“我”的清凉藏着柔软

客餐厅地板竖向排铺 天花线条与柜体延伸 用沉默的语汇拉长客厅的视觉 柜体设开放格客厅不堵塞 柜体封闭区拿来囤货

启物设计

设计收费:面议 元/平             

擅长类型: 家装,豪宅,别墅

在线咨询

扫描二维码关注我们的微信

深圳市聚设汇文化传媒有限公司
主编热线:15602987227
总部:深圳市罗湖区梨园路128号宝能汽车大楼416单元
佛山、东莞、成都、重庆、福州、厦门、南昌、武汉、
杭州、苏州、温州、郑州、长春、沈阳、贵阳、柳州、
哈尔滨、九江等城市设立办事处
© 2017-2021 Jsheh.com 版权所有 粤ICP备17079093号
展开
回到顶部