设计公司:启物设计
主案设计:连天峰
设计时间:2019
项目面积:90㎡
项目风格:北欧
项目造价:25w
项目地址:龙华 港铁天颂
台湾屋主一家,因为小孩上学选择在深圳定居。他们认为新家的形式不重要,重要的是家要温柔,时常给人精神慰藉、宁静和隐秘之中给人想像的空间。 装修设计
我们用契合屋主气质的艺术家-- 乔治•莫兰迪,他笔下不张扬的高级灰沁入整屋。
白净的天花,墙面炊烟般的淡薄底色,配合造型简单的家具。一切都和谐的存在着,细小,又能发现生活宁静的气息。
电视墙左边是吧台,下部的镂空对应电视柜的空位。 用柜体做电视墙,保持整面造型统一。偷偷把左边做假柜门,给厨房安排收纳高柜,其余柜体给客厅做收纳。
有诚意的放上前期效果图,对比案例的完成度。
上班族更愿意远离油烟,在吧台上做点轻松的食物。 因此吧台造型也不必太笨重,有镂空的地方,就有呼吸感。保留两个大抽屉,台面不再被各种包装食品侵占,属实好用。装修设计
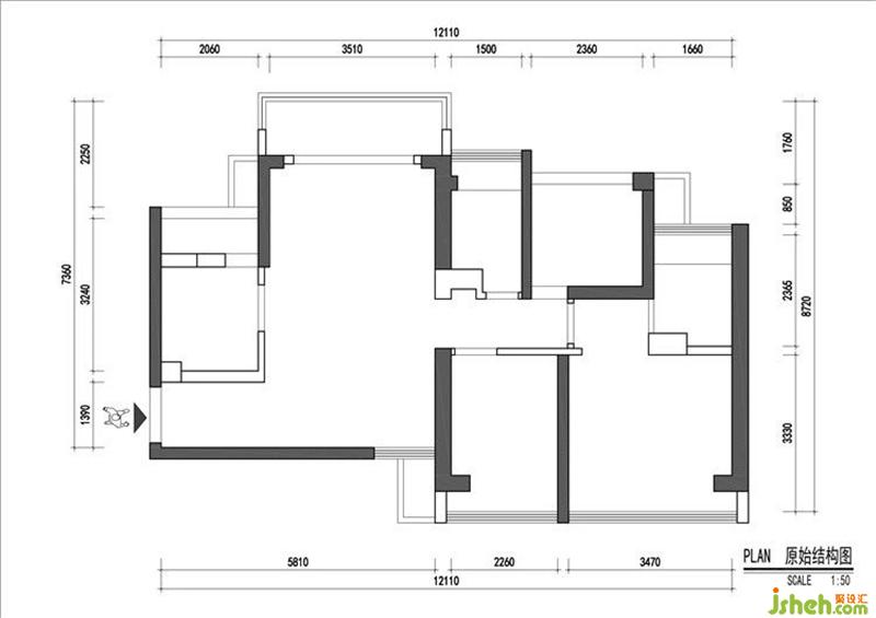
《 Plan 》
结合下图看改动区域
1.取消并不好用的生活阳台,厨房向上移动。
2.由此产生吧台轻食区,没有墙体的阻隔,放大了公共区。
3.轻轻改变门洞开门方向,主卧多出独立化妆区域。
《 Living Room 》
眼里没有抢眼的物件,才激发了触觉感受。脚踩在地毯上略带粗糙的质感,空调微凉被毛毯包裹,中和的体感。沙发是否柔软到的恰到好处呢?挂画也是随性而放。装修设计
