设计公司:启物设计
主案设计:连天峰
设计时间:2019
项目面积:113㎡
项目风格:现代美式
项目造价:45w
项目地址:南山 蔚蓝海岸
初次见面sherry,在人潮涌动的海岸城,凭借她优越的身高,我们一眼就认出了她。那次我们是为了她美甲店的事业而来,乐此不疲的谈论到各种网红元素。新店起航,sherry开始琢磨起自家的装修,说我们的设计服务和她找的施工队相比像一股清流。于是达成二次合作,sherry开始表达更多她所喜欢的氛围,我们谈论了许多美式、温馨、优雅的质感。

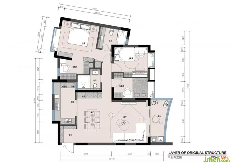
《 Plan 》

1:厨房将生活阳台纳入厨房后,厨房面积有效提升。sherry立马换了两个对开门冰箱。
2:主卧这次安排到sherry心心念念的衣帽间。同时在卧室配有入墙储物柜,收纳大提升。
3:次卧用衣柜代替隔墙后,既有活动空间,收纳功能也不影响,甚至规划了儿童房的钢琴区。
《Foyer 》
功能性玄关,收纳量十足。地脚线,门套,线板高度统一,搭配金色的拉手,精致的细节一进门就能感受到。装修设计
《 Living Room 》


电视墙面的黑正好与大面的灰度平衡。窗帘的灰色拼上一条亮黄,在平静中放一声活泼的波澜。
《 Dining Room 》
