欢迎光临聚设汇,装修找设计就上聚设汇!
   咨询电话:15602987227
登录    注册
聚设汇
首页 > 商业 > 精致美学空间,HI GIRL美发沙龙

精致美学空间,HI GIRL美发沙龙

项目名称 | HI GIRL SALON

项目地址 | 安徽芜湖·摩根100商务楼

设计机构 | 研设计

设计主创 | 谢润秋

项目面积 | 150㎡

主要材料 | 实木墙板、水泥艺术漆、地坪漆、乳胶漆

空间摄影 | 晟苏建筑摄影

Hi Girl 是一家立足于安徽芜湖的美发沙龙品牌,由多位才华横溢的形象设计师组成,团队始终保持高频率国内外游学,凭借非凡品质收获了一大批忠实粉丝。本次合作,从品牌分析到理念的碰撞,将空间设计与Hi Girl经营理念充分融合,打造一个集展示、易用性、舒适为一体的美学空间。

店铺装修

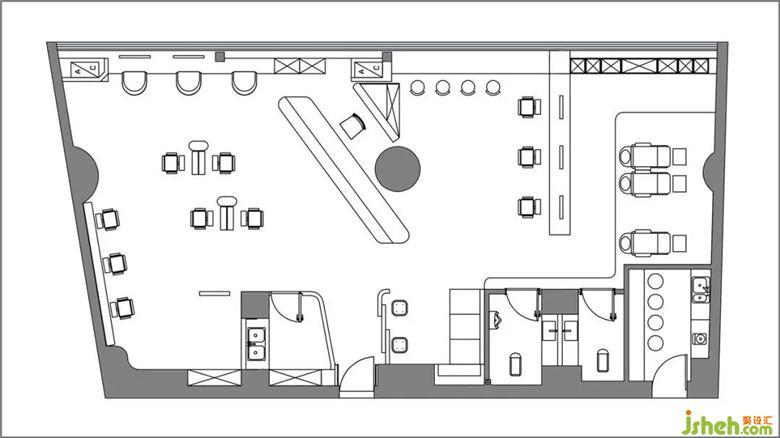
原始空间的入口处有一根直径一米的圆柱,我们设置了一个倾斜的巨大吧台,弱化了圆柱给这个空间所带来的拥堵感,圆柱也与吧台形态呼应,充分调和了空间比例关系,超长的吧台使得水吧与收银台一体化,大大增强了空间功能的多样性。

在吧台的之后,没有去做传统的形象墙,而是根据吧台的倾斜度,再融入弧形的元素,进一步的去增强吧台与圆柱的衔接关系。

店铺装修

店铺装修

在满足功能需求后,没有进行过多墙面装饰的堆砌,而是去弱化空间中的“矛盾”,同时优化空间的比例关系,营造出更加优美的线条与几何元素。

店铺装修

店铺装修

研设计

设计收费:面议 元/平             

擅长类型: 家装,现代

在线咨询

扫描二维码关注我们的微信

深圳市聚设汇文化传媒有限公司
主编热线:15602987227
总部:深圳市罗湖区梨园路128号宝能汽车大楼416单元
佛山、东莞、成都、重庆、福州、厦门、南昌、武汉、
杭州、苏州、温州、郑州、长春、沈阳、贵阳、柳州、
哈尔滨、九江等城市设立办事处
© 2017-2021 Jsheh.com 版权所有 粤ICP备17079093号
展开
回到顶部