项目地址:杭州·风雅钱塘
项目面积:245㎡
设计机构:青云居设计
前言:
因为家中有小孩和长辈,在风格的选择上面,中和各成员意见,室内设计师建议现代简约风格,大面积的落地窗,得以让绿色肆意的展现在家中,穿插原木色,让整个家里充满温馨感。这种设计的美,在于家庭和自然相结合,低调而内敛又不失沉静悠然。“家庭与自然”这个主题不仅贯穿始终,更是这个空间的灵魂。
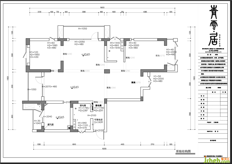
原始一楼
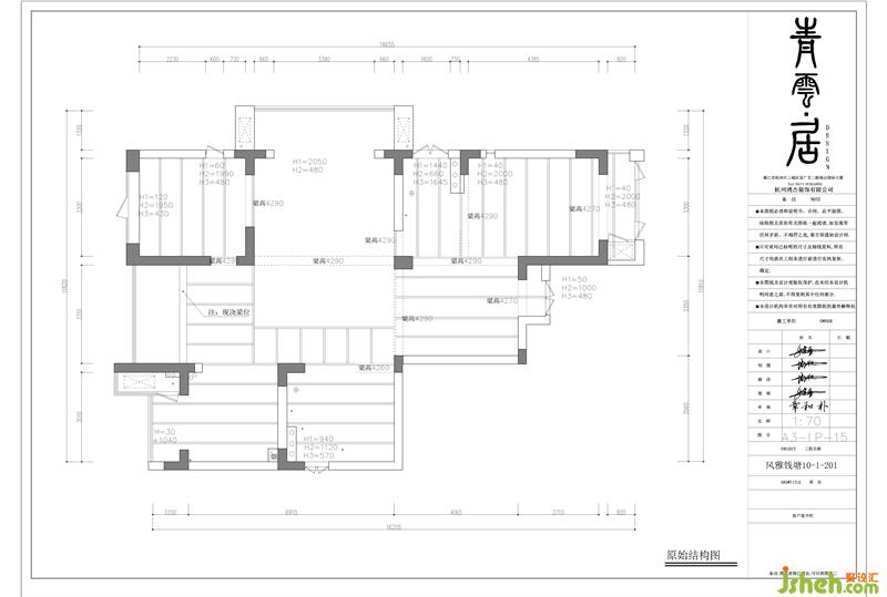
原始二楼
玄关:
玄关处的镜子很加分,起放大空间的效果。鞋柜与换鞋凳等很好的满足生活的需要,格子地砖作为玄关与客餐厅的空间区分,没有多余的装饰,简洁自然。
客厅:
在开放与独立之间,室内设计师把握好了最适中的尺度,各个功能区相互连接,又不打扰。屋主将客餐厅定义为家的生活中心,宽敞的面积,多处的开窗设计保证了室内充足的采光视野,打破传统观念,客厅没有茶几,让设计回归生活!


在二楼以俯视的角度拍摄客厅全貌,灰色布艺沙发与北欧风地毯上,蓝黄色抱枕作为跳色活跃了整个空间。纯净的白与温润的木,成为室内主要的元素。足够的功能需求,为全家人营造舒适的生活环境。



室内设计师采用充满设计感的灯具,利落的线条,使得空间配色上面更加的轻松自然,与窗外绿植相映成趣。