欢迎光临聚设汇,装修找设计就上聚设汇!
   咨询电话:15602987227
登录    注册
聚设汇
首页 > 家装 > 繁华思静

繁华思静

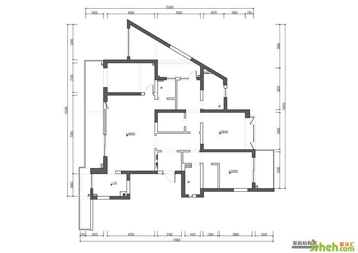
屋主偏向于现代简约风格,原始格局上空间墙体太多使得面积过于分散,设计师建议在保证功能性和舒适性的前提下,原始多余的墙体可以舍弃,扩大视觉面积带来更多的舒适感。

玄关处两边墙体拆掉,扩大入户视野,并在对面增加储物间存放杂物。客厅阳台内包,将客厅活动范围增大,靠承重墙处增加休闲吧台。

考虑到屋主不需要三个卫生间后,减少一个卫生间,扩大书房面积改动入门方向,并将书房与影音室功能相结合。

父母房原先衣帽间部分拆除,改为现场定制衣柜,增加了卧室面积。

青云居设计

设计收费:面议 元/平             

擅长类型: 家居住宅

在线咨询

扫描二维码关注我们的微信

深圳市聚设汇文化传媒有限公司
主编热线:15602987227
总部:深圳市罗湖区梨园路128号宝能汽车大楼416单元
佛山、东莞、成都、重庆、福州、厦门、南昌、武汉、
杭州、苏州、温州、郑州、长春、沈阳、贵阳、柳州、
哈尔滨、九江等城市设立办事处
© 2017-2021 Jsheh.com 版权所有 粤ICP备17079093号
展开
回到顶部