项目地址:中国·桂林
设计主创:欧建书/周扬
摄 影:欧建书
项目面积:1700平米
设计风格:现代风
项目定位:
作为桂林本土最大的健身连锁企业,因此健身店设计创意中考虑设计元素的可复制性,便于统一店面空间视觉系统。
健身店设计空间意境:
圆,圆中圆,大圆小圆,圆圆满满。
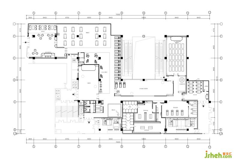
空间布局:
蜿蜒曲折的动线即是为了满足功能划分,同时增加了空间尺度感与自由度,健身店设计而随着灯光和材质变化、色彩之间的转折,使空间界面互为穿插和延伸,形成丰富而递进的空间场景。隔尔不断的设计手法为了保证功能空间的独立性基础上,增加空间穿透感和光影,同时形成一个既相互独立而又相互连贯的空间系统。





