整个空间以淡雅色调为主,营造一种安静舒适的氛围,结合沉稳的烟灰色木饰面,衬出别墅的低调奢华、雅致贵气。雅致的饰品与美式线条的家具相结合,尽显端庄典雅。厚重的油画、灰雅色调等轻奢元素运用到别墅的各空间,体现出高雅的品质生活。从一楼品茗区直通楼顶的挑空空间,霸气十足,使室内空间相贯穿,煮茶之余还能仰望星空。留白和对称等的设计手法的运用,展示含蓄又大方的气息,打造出轻奢的生活格调。这一方天地,清新、雅致、自然、奢华皆能体现,是我们远离闹市工作和生活之后休闲放松的空间。

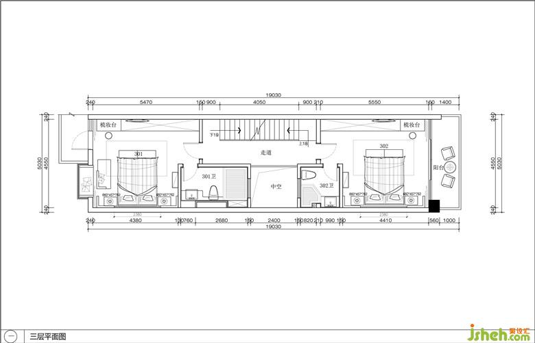
别墅装饰
品位文化,感悟生活,在这里寻求最合适的表达,打造一种追求完美、追求品味的生活态度。

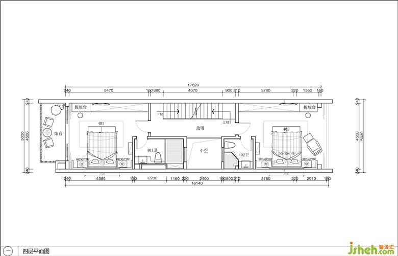
别墅装饰

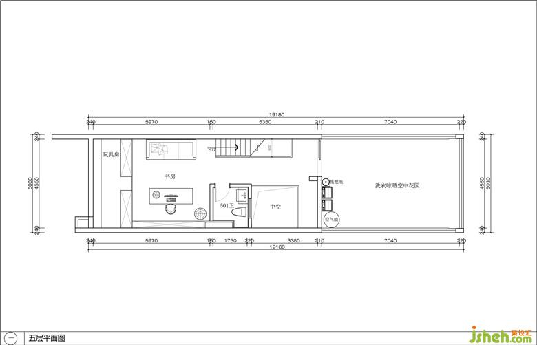
别墅装饰




