欢迎光临聚设汇,装修找设计就上聚设汇!
   咨询电话:15602987227
登录    注册
聚设汇
首页 > 家装 > 恒隆花园 | 身处繁华之地,却偏要破茧重生!

恒隆花园 | 身处繁华之地,却偏要破茧重生!

夜幕临近,星河沉寂,对面的高楼灯火明明灭灭,摒弃掉白昼的喧闹,夜晚的一切都安静得很。从自家窗户悠悠望去,城市只是脚下一声叹息,抬起头就能看见朦胧的月和漂浮的云。

——生活也好,设计也罢,诗性的色彩点缀安静的素色应是我们居住文化的基础。

原始结构图

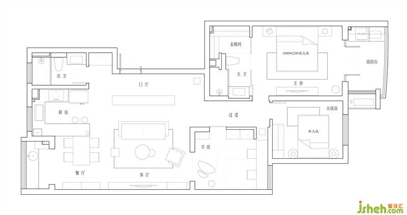
平面布置图

更多装修设计请关注聚设汇装修平台:

品承设计

设计收费:面议 元/平             

擅长类型: 现代,田园,欧式,古典,美式,混搭

在线咨询

扫描二维码关注我们的微信

深圳市聚设汇文化传媒有限公司
主编热线:15602987227
总部:深圳市罗湖区梨园路128号宝能汽车大楼416单元
佛山、东莞、成都、重庆、福州、厦门、南昌、武汉、
杭州、苏州、温州、郑州、长春、沈阳、贵阳、柳州、
哈尔滨、九江等城市设立办事处
© 2017-2021 Jsheh.com 版权所有 粤ICP备17079093号
展开
回到顶部