项目坐标 /深圳市理想雅园
项目类型 / 私宅
项目面积 /90㎡
户型/3室1厅2卫
业主/邵女士
设计机构 / 木子仁设计
施工/深圳众仁装饰设计
软装 / 木子仁设计
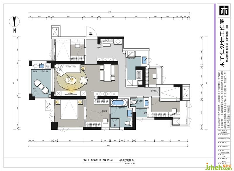
户型图
业主信息:
常住人口5人;老人2名,男方父母,主要帮忙带小孩;小孩1名,男孩4岁半;
这个户型是一套三房,但是承重墙体比较多,做了较适合业主需求的调整,根据业主的需求,希望有一个自己办公的空间,老人需要三餐做饭的厨房和娱乐的场合,小孩有玩耍的区域,于是形成了这个双路径且各自满足各自需求的方案,业主晚上回家时,可以直接从主通道进入主卧,不会影响休息的儿童,两位业主有小孩以及还有老人,所以需要非常大的储物量来安置每个人的衣物以及每个人生活必需品。深圳装修设计每个区域都有柜子,体现了就近收纳的理念。同时满足三代人生活差异的求同存异,和谐生活以及基本住宅需求。
位于后海的理想雅园,风、光,水的流动,在自然中惬意生长,如能让室内空间有更多的自然气息,处在其间的人们就能更好地接收、理解信息,及掌控自己的注意力。
玄关
(图为从客厅看向入户门)
利用过道动线,把客厅一分为二,一边会客空间,另一边是餐厅空间。让整个空间区分开来,却做好空间区分,也让整个客厅空间放大的效果。
客餐厅
(图为从餐厅看向客厅)
沙发背景和餐桌背景选择了统一的浅色的涂料,不喧宾夺主的同时增加了空间协调,同时沙发背景圆形造型和餐桌正方形简约挂画,一圆展示家庭温馨的感受,一方给予人克制感,让业主居住空间张弛有度。
电视柜顶上的空调回风口做了一整条木饰面,加长风口的使用强化了客厅的线条感。线性灯光给予空间指引。
餐厅和客厅之间有个黑色的推拉门和电视背景黑色开放柜形成呼应的同时,增加了门后卧室空间的私密性,保留了女主人自己的办公空间不受打扰。

业主的父母会在靠近餐厅旁的中厨,进行一日三餐的制作,中厨过道的动线直接连接玄关鞋柜,此间转角的设计成圆弧形,让孩子在家庭穿梭的空间多一些保护性,增加了空间柔软包容感。让我们的设计理念得以释放,设计源于生活,也融入生活。
客餐厅整个空间采用的是无主灯的形式来呈现光源氛围,大块面积的白色天花增加了整个客厅的利落度,深圳装修设计家里淡淡的木色调与环境和谐共生,营造一种惬意、简雅的生活体验。
客餐厅通向主卧,推拉门可以隔绝业主在家也能办公的自由。
