

主卧也用最高效的动线安排,进门就是一字型步入式衣帽间.第三个枫木盒子位于主卧。 木质的大地台床能模糊上下床的界限,也让使用者能更加放松。
The master bedroom is also designed with the most efficient moving line. The door is a straight walk-in cloakroom. The third maple box is located in the master bedroom. The wooden platform bed can blur the boundaries of getting on and off the bed, and also allows users to relax more.
▼榻榻米房间

榻榻米房间整面的收纳延续书桌关系做了一个置物凹口的视觉打破,再利用镜面强化使感受上有了一个更深的延伸上海装修设计。除了必要的盥洗与更衣。全屋使用的装饰性镜面元素原则上都是远远低于或高于人的日常视线。
The cabinet on the entire surface of the tatami room continues as a desk, creating a visual break of the recess, and then using the mirror to strengthen the visual experience to have a deeper extension. In addition to the necessary washing and changing clothes, the decorative mirrors used throughout the house are lower or higher than people's daily sight.
▼厨房

▼卫生间

晴天时大玻璃窗外的政法校园视野开阔,绿荫葱葱。
On sunny days, the campus outside the glass windows has a wide view and lush green shades.
没有附庸风雅,没有凌杂米盐,窗外是森林般的华政校园,窗内是属于两位老师的充满理性的,书香诗意的小木屋。
There is no arty, no miscellaneous rice and salt, outside the window is a forest-like campus, inside the window is a rational, scholarly and poetic cabin belonging to the two teachers.
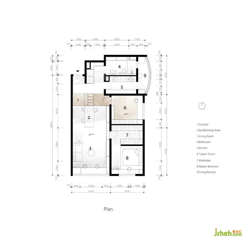
▼改造后平面图
Plane plan after modification
更多上海装修设计请关注聚设汇装修平台: