主案设计/ 张英琦 陆凯琳
参与设计/徐帆
项目地址/ 上海
户型面积/53㎡
竣工时间/ 2021年1月
施工 /温端銮
摄影/ 郑杰
哲学家兼修士托马斯·阿奎那曾说过:
“应当有人终生致力于静观深思,
这对人类社会的完美实属必要“。
The philosopher Thomas Aquinas once said:
"Someone should devote their lives to quiet observation and deep thinking.
This is necessary for the perfection of human society."

我们用白色暖灰加以木头试图营造
一种适合现代审美的家居空间,
延续”温暖的极简主义“。
We use white warm gray and wood to create
a home space suitable for modern aesthetics,
continuing the "warm minimalism".
室内原状
Indoor undisturbed

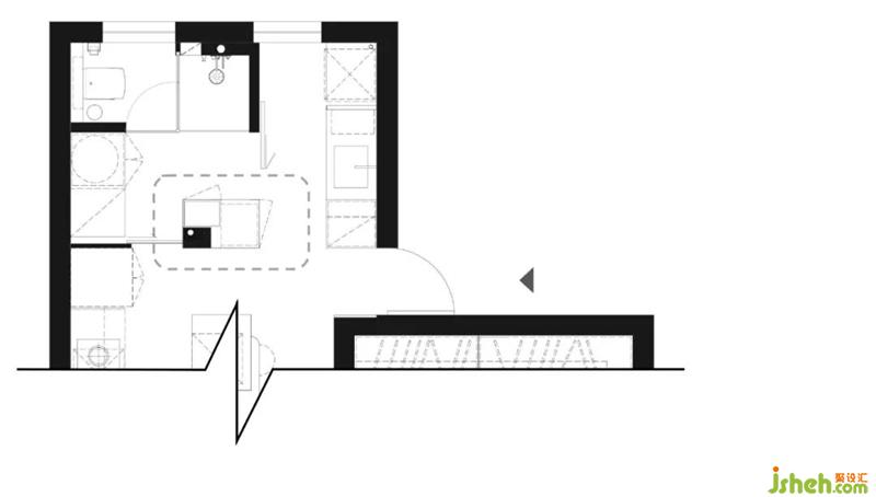
在布局上解放出原来的厨房区,
给出生活操作区结合三分离的形式,
将北面打开的同时用足功能,
客厅内开放式厨房与岛台餐桌相结合,
兼顾洄游动线的操作便利性。
In the layout, the original kitchen area is liberated, and the living operation area is combined with three separate forms, which opens the north side while giving sufficient space for functions. The open kitchen in the living room is combined with the island dining table to take into account the migratory line operation.
▼客厅


静坐、独处,
透过蜂巢帘过滤过的阳光,显得如此温润,
给木头墙体都蒙上一层光影的涟漪,
上海装修设计感受偶尔拾得空间的小确幸,
何尝不是又一种心灵上的洗涤。
Sitting quietly, being alone, the sunlight filtered through the honeycomb curtain looks so warm, covering the wooden walls with a layer of light and shadow, feeling the small beauty of the space, is it another kind of spiritual washing.
▼餐厅

用微水泥材质覆盖定制的餐桌台面,
带有温润的水泥质感,
在整个白色的空间中增添了材质上的层次感。
Cover the custom-made table top with micro-cement material, with a warm cement texture, adding a sense of material layering to the entire white space.
▼玄关

进门处的玄关,实现动线上的三分流,
动线一:疫情的原因逐渐已影响我们的生活方式,进门可以先进盥洗区,清洗双手,
动线二:买菜回来径直解放双手上海装修设计,或是放置冰箱内或是吧台
动线三:下班回家进入客厅或卧室休息。
The hallway at the entrance realizes the three-way flow of the moving line. Line 1: The cause of the epidemic has gradually affected our lifestyle. You can enter the wash area first to wash your hands when you enter the door. Moving line 2: When you come back from shopping, you can just free your hands, or put it in the refrigerator or on the counter. Movement line 3: Go home from get off work and enter the living room or bedroom to rest.
▼卫生间

