项目名称方舟-MillionCuriosity店铺设计
设计师:罗强强
设计单位:厦门夕四设计事务所有限公司
项目所在城市 泉州-南安
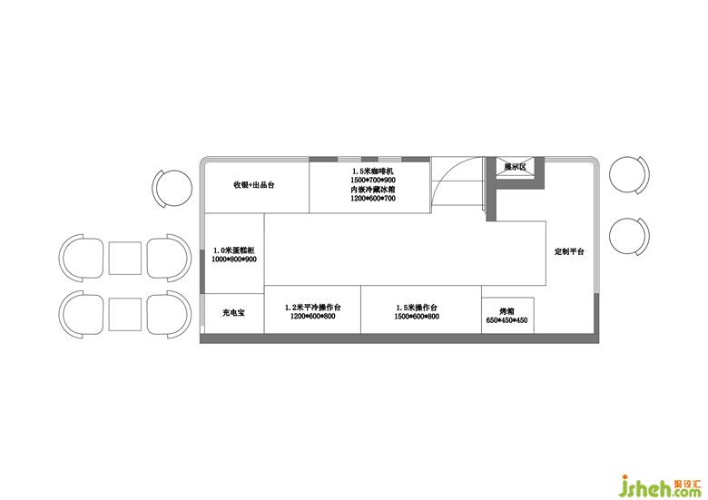
项目面积11.8m²
项目总造价8万
或许很久以前,人类对生存的这颗星球就不再有安全感。很多年来,人类一直没有放弃寻找传说中的诺亚方舟。MillionCuriosity·方舟店是品牌独立外卖店店铺设计,可以自由放置在商场,广场等区域,自成系统,国内互联网时代冲击下成为一种小而精且紧跟时代的普遍的店铺。柔光不锈钢与长虹玻璃材质给方舟带来了神秘感与科技感,圆弧形的窗洞设计与精致的线条在视觉形态上与太空相关联,充满未来感。





