项目名称:CAV智能影音
项目类型:体验店
项目面积: 330m²
设计风格:现代简约风格
项目地址: 重庆 · 北部新区
竣工时间: 2020年7月
主案设计师: 刘熠 /董丽
21世纪最伟大的发明是“互联网”,而现代家庭的新宠离不开智能影音。一个充满时尚的未来主义空间,通过一系列不同的环境,进行场景互动,体验本就是一种轻松愉悦的方式。
本案装修设计落座于重庆北部新区,“CAV智能影音”专业音响品牌,不断探索声音的更高境界,把美好品质的影音体验带给每一位客户,也赋予设计本身不仅是一个容器,可是以一台音响、几座投影、一场音乐饕餮盛会,模糊物与形的界线,全身心体验与空间融入一体。
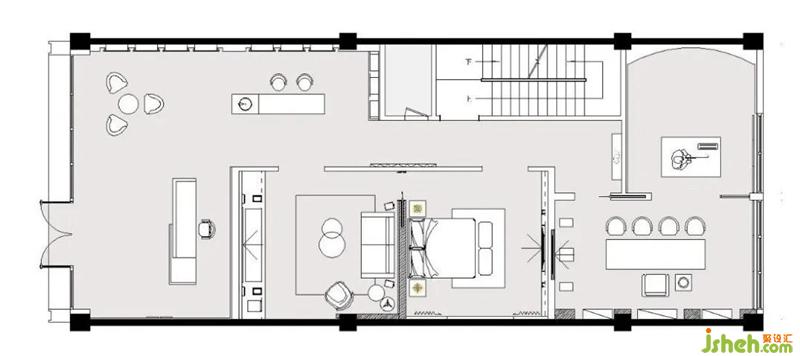
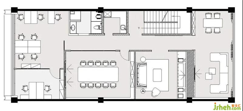
△CAV负一楼
△CAV一楼
△CAV二楼
从宽敞的入口开始,明亮的纯白和黑色霓虹灯科技现代,二楼装修设计用白色铝板不规则折叠露出窗户位置,通风采光功能保留下来,美观的造型起到很好地掩盖效果。从细微里捕捉阳光和雨露的音乐
首先最重要的开始,应该是LOGO背景墙。两边暗藏灯带,从地面一直延伸至天花,起到延伸感。从前台一步步牵引,开阔明亮,装修设计摒弃主灯带来的压抑,在没有主灯的空间里,信息流动通透自然。黑色灯槽平行交错,科技时尚感逐步放射出来。

向左走向观看、触摸的产品展示区域。解构、拆分、组装,在这块区域步入了解。搭配休闲椅,暗示着顾客们可以在这个暖心的角落里歇脚,一边享用热饮一边分享他们的智能体验故事。

