欢迎光临聚设汇,装修找设计就上聚设汇!
   咨询电话:15602987227
登录    注册
聚设汇
首页 > 家装 > 这样の家,才够腔调!

这样の家,才够腔调!

项目地址  /  余姚 · 私宅

毕业时间  /  2020 . 07

设计团队  / 力设计

没有不好的颜色,只有不好的搭配   

——文森特·梵高

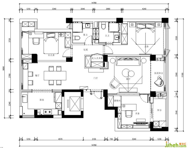
户型图

Plan

平面布置图

客厅

Living room

设计师通过对空间细节和客户居住需求的捕捉,宁波室内设计师采用大胆的色块和线条的不同重组,增强房屋的美感和空间感;柔和的灰色搭配原木,配以跳跃的红色点缀其间,充满了现代主义美学的趣味。

力设计

设计收费:面议 元/平             

擅长类型: 家居住宅,别墅,酒店

在线咨询

扫描二维码关注我们的微信

深圳市聚设汇文化传媒有限公司
主编热线:15602987227
总部:深圳市罗湖区梨园路128号宝能汽车大楼416单元
佛山、东莞、成都、重庆、福州、厦门、南昌、武汉、
杭州、苏州、温州、郑州、长春、沈阳、贵阳、柳州、
哈尔滨、九江等城市设立办事处
© 2017-2021 Jsheh.com 版权所有 粤ICP备17079093号
展开
回到顶部