欢迎光临聚设汇,装修找设计就上聚设汇!
   咨询电话:15602987227
登录    注册
聚设汇
首页 > 家装 > 精装改造,以不凡致平凡

精装改造,以不凡致平凡

项目地址  /  杭州 · 私宅

毕业时间  /  2020 . 11

设计团队  / 力设计

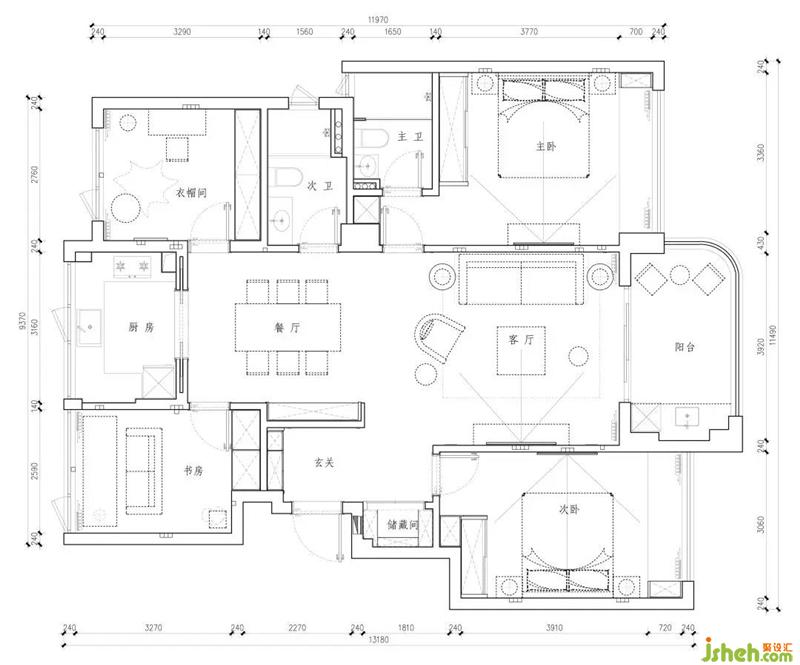
户型图

Plan

平面布置图     

关于设计:精装房的时代,拿到房总有一种“好看的皮囊千篇一律,有趣的灵魂万里挑一”的既视感,打开房门,从顶到地,无限重复,缺少的这一味灵魂,今天就看看我们杭州装修设计师怎样给他注入进去~

客厅

Living room

力设计

设计收费:面议 元/平             

擅长类型: 家居住宅,别墅,酒店

在线咨询

扫描二维码关注我们的微信

深圳市聚设汇文化传媒有限公司
主编热线:15602987227
总部:深圳市罗湖区梨园路128号宝能汽车大楼416单元
佛山、东莞、成都、重庆、福州、厦门、南昌、武汉、
杭州、苏州、温州、郑州、长春、沈阳、贵阳、柳州、
哈尔滨、九江等城市设立办事处
© 2017-2021 Jsheh.com 版权所有 粤ICP备17079093号
展开
回到顶部