项目地址 / 杭州 · 私宅
毕业时间 / 2020 . 10
设计团队 / 力设计
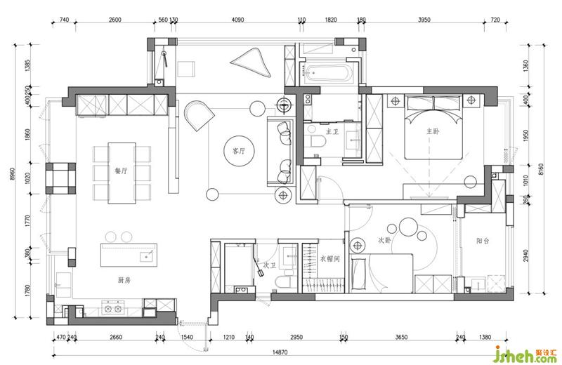
户型图
Plan
平面布置图
设计装修公司的规划作为三口之家,功能充分满足使用,动静分区的手法让空间更加舒畅,客户最初找到我们的时候还是两个人,今天入住时已经是幸福满满的三口之家了,来一起看一看这个即将充满欢乐和幸福的家吧~
客厅
Living room


客厅、餐厅、厨房三者的开放式布局,流畅灵活,悬空的电视墙巧妙的划分空间,提升社交娱乐功能的灵巧性,增加家人之间交流互动的美好生活氛围。




浅灰色的墙面搭配原木的地板装修公司,温暖而雅致,黑白抽象挂画凸显了空间的现代时尚触感。
餐厅
Dining room
