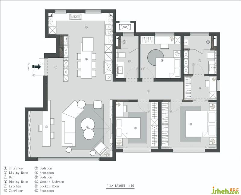
项目面积 143㎡
主创设计 张 刚
摄影担当 华 子
本案原始户型是一套中规中矩的精装房,自身结构相对适合。但对于一个四口之家来说,居住空间就显得过于紧凑,且储物功能不足、空间缺乏交流感天津装修设计。
结合业主的实际需求情况,设计师进行了一次彻底的颠覆性优化设计。在保证生活功能的基础之上,将原始空间打碎而后高效重组。
房子之所以谓之“家”,是因为有了人,人使之沾染上了烟火的气息,
至此房子便成了家。
入户处原有的一面实墙,被具有鞋帽柜功能的隔断所取代。
木质与钢板结合的通透设计,使得这一处仅1㎡的小角落,在视觉效果上显得不再拥堵闭塞。
客厅与狭长的通道组合延伸,弱化了门的存在,使整个空间化零为整。轻巧的内饰,斑斓的装饰画,一路延伸至视线尽头的灯光,淡雅而宁静,让心灵犹如被泉水浸透过一般。
纯粹的情绪,应该找到一处可以静默的地方。


黑、白、灰、橙四种不同色调,冷暖错落,层次分明,让空间色彩更加立体丰富。
木色延续着整个空间的素雅,以温和包容的方式,带来最大化的明快与利落。

缕缕阳光透过电动百叶帘洒入室内,沉浸在一片柔和静谧之中,内心在这一刻方得以安放,午后的阳光也变得慵懒而美好天津装修设计。
