欢迎光临聚设汇,装修找设计就上聚设汇!
   咨询电话:15602987227
登录    注册
聚设汇
首页 > 家装 > 美丽西河别墅装饰

美丽西河别墅装饰

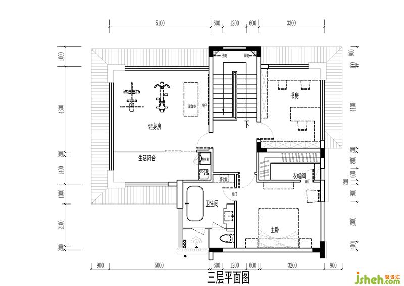
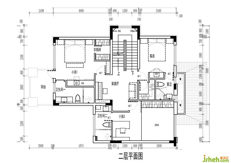
二层原设计为主人房带两个次卧室,业主希望给小宝做个榻榻米房,故将主人房移到三层,二层设计了一间小孩房,一个榻榻米房和一间客房。每间房均有独立洗手间深圳别墅装饰,更巧妙的是楼梯厅设计了钢琴厅。方便女主人和小孩交流学习。三层将原来大露台分别拓展为独立健身房,和书房。主人房则设计大卫生间和独立衣帽间。

平面图:

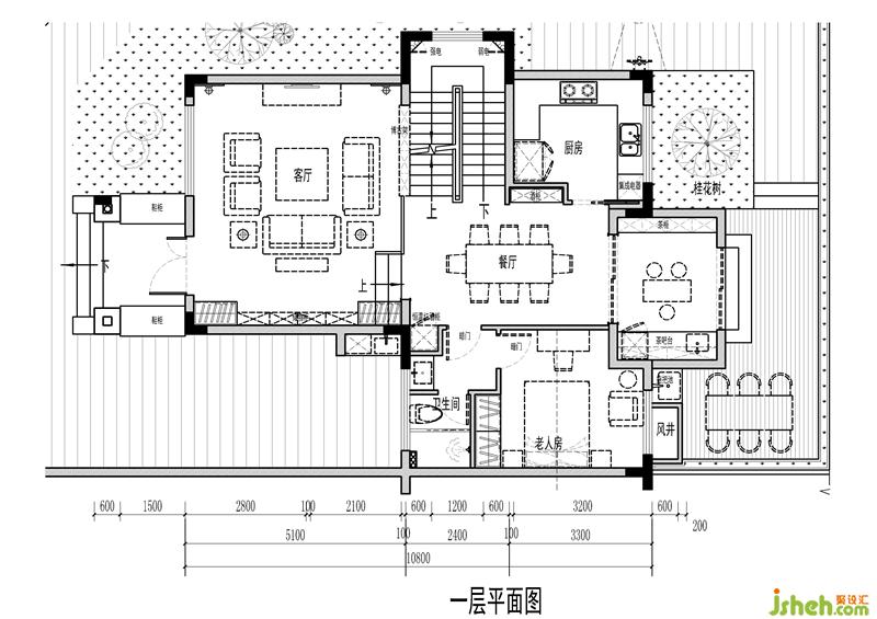
一层平面图

二层平面图

三层平面图

负一层平面图

更多别墅装饰请关注聚设汇装修平台:

深圳洪约瑟空间环境灯光设计有限公司

设计收费:300 元/平             

擅长类型: 豪宅,别墅,SPA

在线咨询

扫描二维码关注我们的微信

深圳市聚设汇文化传媒有限公司
主编热线:15602987227
总部:深圳市罗湖区梨园路128号宝能汽车大楼416单元
佛山、东莞、成都、重庆、福州、厦门、南昌、武汉、
杭州、苏州、温州、郑州、长春、沈阳、贵阳、柳州、
哈尔滨、九江等城市设立办事处
© 2017-2021 Jsheh.com 版权所有 粤ICP备17079093号
展开
回到顶部