项目名称:厦门莱昂公馆
项目地址:厦门翔安
设计面积:约80平方米
完工时间:2019年1月
工程总造价:约20万
设计指导:洪约瑟
设计师:廖波
参与设计:杨国辉
摄影:洪约瑟
装饰材料:大理石、多层实木地板、多乐士乳胶漆、波特曼实木定制、玻璃、布艺软包
洁具:科勒
橱柜:波特曼
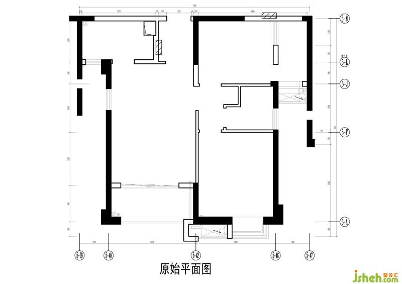
设计说明:
本案位于厦门翔安新区,这是一个三口之家兼顾二孩为受用群体的刚需房。
由于是精装修样板房,在设计的时候不仅要考虑展示效果,更要考虑大批量装修成本及不同业主实际使用功能满足和风格迥异的爱好。所以设计师选择了高级灰的暖色调硬装风格,软装方面灰色系为主,加以点缀暖色调配饰,让空间感觉没有那么沉闷无味。加上柔和的灯光营造出整个空间饱含简约现代气息,完美地展现了主人追求的低调奢华又不乏时尚生活品质。

深圳装修公司

深圳装修公司


深圳装修公司
