欢迎光临聚设汇,装修找设计就上聚设汇!
   咨询电话:15602987227
登录    注册
聚设汇
首页 > 家装 > 南京保利紫荆公馆设计:呢喃

南京保利紫荆公馆设计:呢喃

案例地点 | 南京保利紫荆公馆设计

建筑面积 | 99 平米

案例风格 | 法式复古

装修类型 | 精装房改造

设计机构 | 可米设计

法式精致与复古氛围在空间里融合,打造品悦生活、舒惬身心的一处品质居所

屋主追求精致的生活场景,喜爱法式的复古浪漫,我们在南京公馆设计上运用法式的基调,整体以浅色为主;细节之处,柔软与硬朗结合,平衡空间的美感;南京公馆设计将细腻柔和转换为生活的意趣,多层次的装饰让法式精致与复古氛围在空间里融合,写意出简繁相谐的美学力度,打造品悦生活、舒惬身心的一处品质居所。

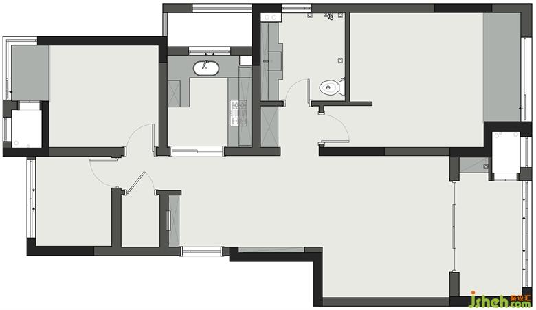
户型图

南京公馆设计项目位于南京江心洲的保利紫荆公馆,建筑面积99㎡,精装交付,户型为三室两厅一厨一卫设计。客餐厅连接向南阳台,采光充足。屋内有一间储藏间,可以作为家里杂物的收纳。除了主卧,其余两个卧室较小。

屋主需求:

1、需要主卧+儿童房+多功能室

2、由于是精装交付,整体硬装上不打算大动

3、风格上喜欢复古的法式风格

我们进行了如下优化:

1、室内柜子、门、门套、墙纸、踢脚线、灯具、阳台瓷砖、飘窗及栏杆都做拆除

2、结合整体的南京公馆设计和搭配及木作定制,进行窗帘、家具、灯具、软装配饰的空间搭配和落地执行

玄关

入户左侧定制玄关柜,顶天立地的设计,白色与法式线条的融合,实用又美观;南京公馆设计配以金色的金属拉手,增加轻奢质感。走廊尽头定制开放式的展示柜,摆放装饰品、书籍等,提升空间的艺术品味,适当的开放式展示架又能增添层次感和轻盈感,给人一种灵活多变的空间效果。与厨房之间采用门帘做隔断,既节省了厨房空间,又很好的将两个空间独立划分;精美的蕾丝花纹,柔化了室内的光线,为屋内带来温柔的法式气息。门头处设计了波浪纹的造型,为屋内增添灵动的视觉感受。

客厅

来到客厅,一款酒红色的绒布窗帘映入眼帘,在安静沉稳中散发出高雅的格调感,南京公馆设计让人感受到醇厚暖意的同时又使整个空间充满质感。

客厅的沙发背景墙采用护墙板的南京公馆设计,通过线条的点缀,提升了墙面的立体感;中间留空用壁纸充实空间的色彩与内容,暖灰色护墙板搭配上复古的花色壁纸,再配以复古的装饰画,装修使得空间在温柔中散发着浓厚的时尚复古气息。

米色的皮质沙发,简洁中凸显随性,扶手大小高低刚刚好,靠着、躺着都很舒适。

沙发一侧布置上米白色水磨石底座+铜色金属圆盘的边几,南京公馆设计在上面摆放精致的摆件和花卉,让家居搭配变得更多元化,有层次。闲暇时窝在软软的沙发里,杂物和茶杯、水果、书籍等都可以交给他“保管”,省心省力。

沙发另一侧购置一款金属落地灯,简洁而富有张力的外形,圆润小巧的玻璃灯罩,透光柔和;灯臂可转动调节,南京公馆设计为空间提供多角度照明;黑色与金色的组合,展现了金属的厚重与温暖质感。

可米设计

设计收费:面议 元/平             

擅长类型: 家装、豪宅、别墅

在线咨询

扫描二维码关注我们的微信

深圳市聚设汇文化传媒有限公司
主编热线:15602987227
总部:深圳市罗湖区梨园路128号宝能汽车大楼416单元
佛山、东莞、成都、重庆、福州、厦门、南昌、武汉、
杭州、苏州、温州、郑州、长春、沈阳、贵阳、柳州、
哈尔滨、九江等城市设立办事处
© 2017-2021 Jsheh.com 版权所有 粤ICP备17079093号
展开
回到顶部