项目名称:米芽亲子口腔门诊
项目类型:口腔门诊
项目面积:351㎡
项目地点:广东省深圳市
设计单位:开普俊梦儿童空间设计
摄影:景忠



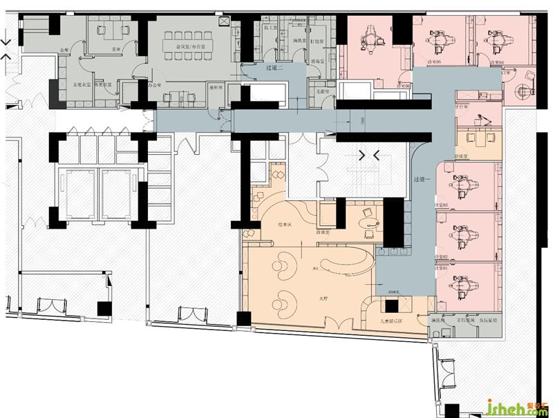
米芽亲子口腔门诊位于广东深圳,主打青少儿口腔预防保健,颜面发育管理以及正畸治疗。作为亲子诊所,在为3~16岁少年儿童服务的基础上,也可覆盖其他年龄层人群的口腔治疗。
对孩子而言,齿科诊所常伴随着恐惧与不开心,开普俊梦以设计延伸至儿童心理,试图通过优化空间环境,缓解孩子对“看牙”的焦虑深圳口腔门诊设计,让空间充满关怀。


突破传统诊所冰冷形象,大胆运用多色彩,使空间更具层次,更有质感,也更精致。功能上增设绘本区、游戏区等儿童喜欢的功能区,让孩子主动走进口腔门诊诊所。


我们尽量多地从细节入手深圳口腔门诊设计,只为营造出不同以往的、温馨舒适的诊所环境,让每一位来这里治疗的孩子,都能以更好地心态去面对、去接受。
更多深圳口腔门诊设计请咨询