项目名称:圣果青少儿成长中心(佛山泷景校区)
项目类型:培训机构
项目面积:600㎡
项目地点:广东省佛山市
设计单位:开普俊梦儿童空间设计
摄影:黄书颖
01
企鹅故事国际托育中心
企鹅故事国际托育中心,是国内首批设有3岁以下婴幼儿托育的高标准机构。也是一个可以容纳3-6岁孩子托育与早教一体的中心。
设计师将日本的育儿理念和设计方式融入空间,托育中心设计采用日式风格,结合国内情况,化繁为简,将空间还给孩子,并通过环境来引导孩子,培养多方面的能力。
▷大厅
顺应孩子自然的天性,开发潜能。游戏城堡满足孩子们日常娱乐所需。托育中心设计据0-6岁孩子身体机能,分成高、低年龄段孩子娱乐设施。
▷分龄段游戏区

▷过道
地面模拟马路标志,孩子们穿行其中,引导孩子认识交通知识,享受属于自己的玩耍空间。
▷绘本区
合理利用空间中的犄角旮旯,为孩子们开辟出一块阅读小天地!
▷婴幼儿教室
托育中心设计借鉴日本低龄段婴幼儿教室的设计理念,结合国情,首创推出符合中国低龄儿童的婴幼儿专属教室!

▷1岁孩子的教室
考虑1岁孩子的身体机能,空间铺设的爬行垫与围栏,孩子爬行和学步的快乐必须满足!
▷大龄儿童教室

▷多功能教室
托育中心设计为更好地利用空间,打破常规,设计多功能教室,在功能排布上使空间连贯,又相互独立。折叠门闭合,形成普通教室和烘焙室。

▷放被柜
被子收纳体系,托育中心设计各个床垫可以摊开分层放置,有效杀菌、散汗味。

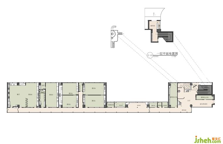
平面图 | Floor Plan
更多托育中心设计资讯请关注聚设汇装修平台: