欢迎光临聚设汇,装修找设计就上聚设汇!
   咨询电话:15602987227
登录    注册
聚设汇
首页 > 商业 > 圣果青少儿成长中心

圣果青少儿成长中心

▷卫生间

卫生间将盥洗区与便间分离,独立的小隔间,保护着孩子们的隐私。洗手池下方做收纳柜体既能很好地隐藏水路管道,也能作为储物空间,一举两得!

 

▷厨艺教室

为孩子设计的厨艺教室,特意设置符合老师、孩子身高的高低台,方便老师、孩子操作。吊柜和储物柜帮助老师收纳物品,保持空间整洁与干净。

 

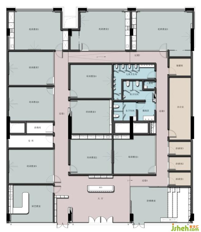
平面图 | Floor Plan

更多儿童空间设计请关注聚设汇装修平台:

深圳市开普俊梦室内设计有限公司

设计收费:300 元/平             

擅长类型: 幼儿园、文教

在线咨询

扫描二维码关注我们的微信

深圳市聚设汇文化传媒有限公司
主编热线:15602987227
总部:深圳市罗湖区梨园路128号宝能汽车大楼416单元
佛山、东莞、成都、重庆、福州、厦门、南昌、武汉、
杭州、苏州、温州、郑州、长春、沈阳、贵阳、柳州、
哈尔滨、九江等城市设立办事处
© 2017-2021 Jsheh.com 版权所有 粤ICP备17079093号
展开
回到顶部